1 bedroom Semi-detached bungalow Sold STC

St Andrews Road, Mablethorpe, LN12

£129,950 | SSTC

1 Bedrooms
1 Bathrooms
1 Receptions

Mablethorpe

41 Victoria Rd, 
Mablethorpe, 
Lincolnshire, 
LN12 2AF
Standout Features

Property Description

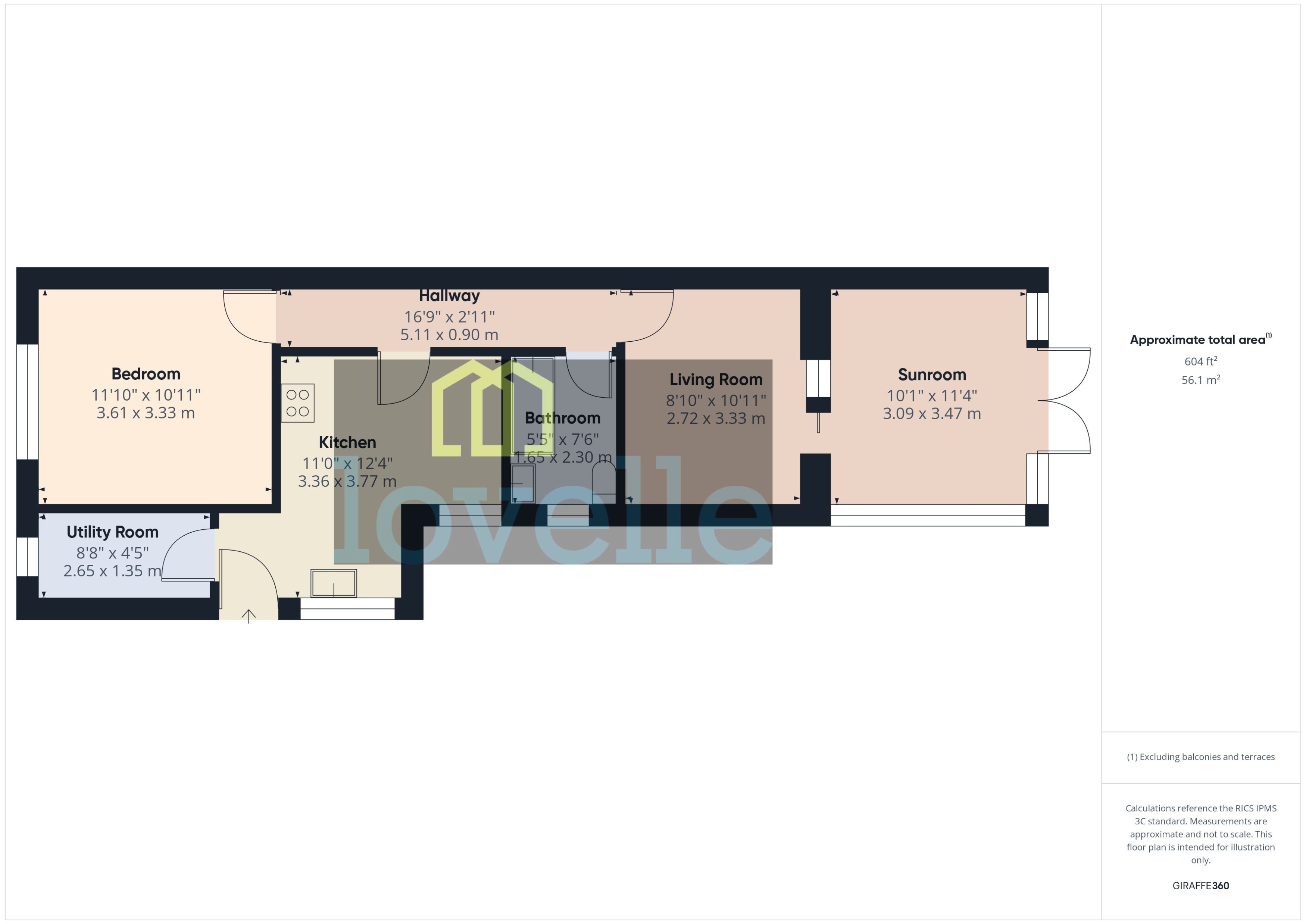
Lovelles are pleased to bring to market this one bed semi detached bungalow situated within walking distance to the beach and towns amenities.

Lovelles are pleased to bring to market this one bed semi detached bungalow situated within walking distance to the beach and towns amenities. The property comprises of Lounge, Kitchen , Utility Room, Conservatory, Bedroom and Bathroom. With Rear Garden and Parking.

EPC rating: D. Council tax band: A, Tenure: Freehold,
Additional Information
Tenure:
Freehold

Mortgage calculator

Calculate Your Stamp Duty
£
Results
Stamp Duty To Pay:
Effective Rate:
Tax Band % Taxable Sum Tax

St Andrews Road, Mablethorpe, LN12

Struggling to find a property? Get in touch and we'll help you find your ideal property.

Interested in viewing this property?
Book a Viewing
Main menu