2 bedroom Terraced House For Sale

PLOT 114 Off Field Head Road, Laceby, DN37

£180,000 | Available

2 Bedrooms
1 Bathrooms
1 Receptions

Grimsby Sales

Hampton House, 
Church Lane, 
Grimsby, 
DN31 1JR
Standout Features

Property Description

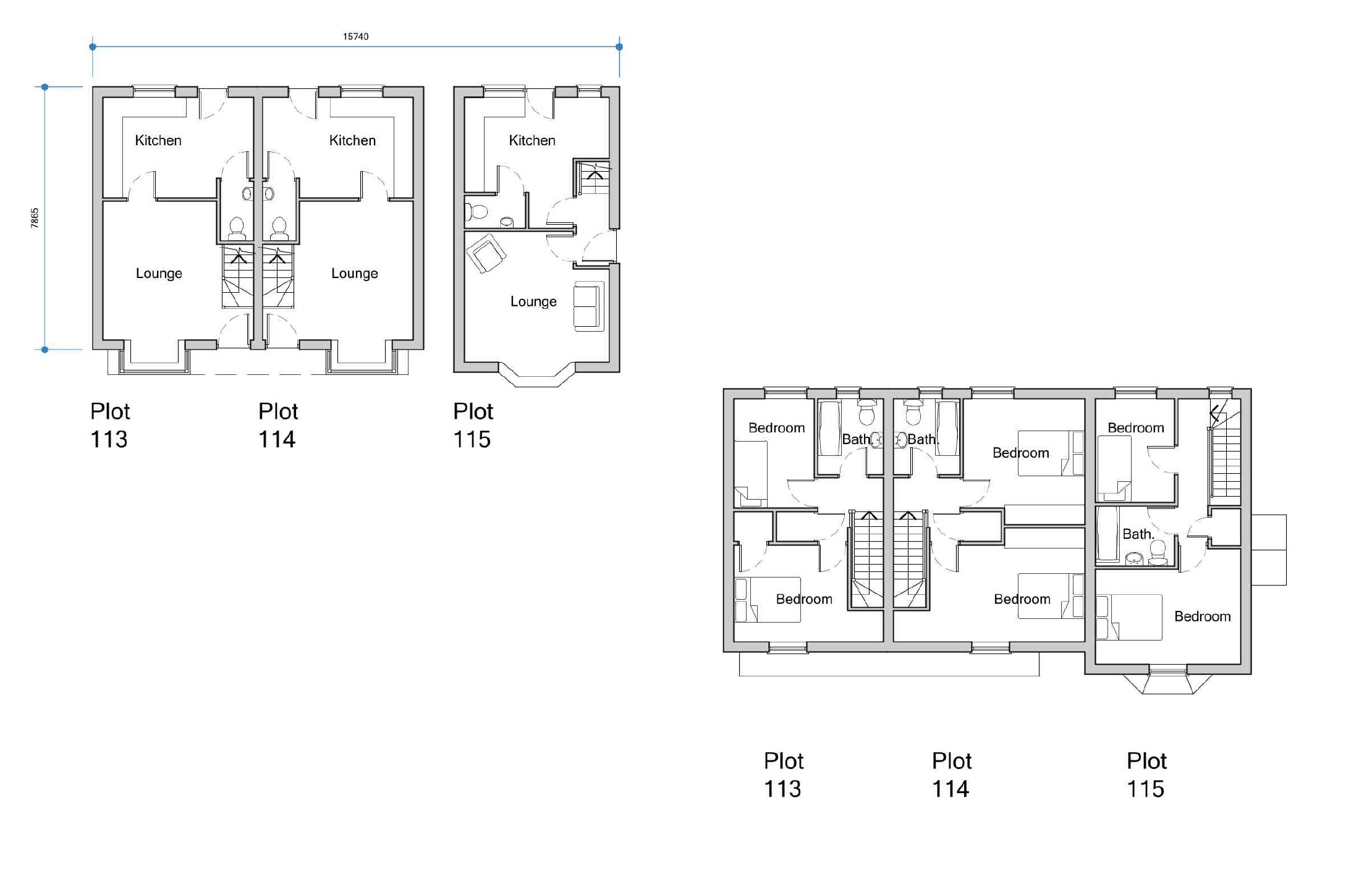
A modern NEW BUILD mid-link house located in Laceby Village. 

**PLOT 114** 

Lovelle are delighted to offer to market OFF-PLAN this spacious two bedroom mid-link property, situated within the highly desirable NEW DEVELOPMENT in Laceby Village off Fieldhead Road.

The accommodation will briefly comprise of a lounge, kitchen/diner, cloakroom, two bedrooms and bathroom. Externally there will be a parking space to the front of the property and an enclosed rear garden. The property will benefit from gas central heating and uPVC double glazing.

The development offers ease of access to the vast range of village amenities, local schooling and open countryside with picturesque routes for active walkers and cyclists.

The properties are being built by local reputable builders Eastbay Construction LTD, well known for their high profile and high quality developments such as Winter Gardens, Cleethorpes.

It is advised that the build will be complete and ready for the new owners in Autumn 2025, subject to weather conditions.

Don’t miss out on this fantastic opportunity, call to arrange your site visit or reserve a plot today!  

The builder has offered a PC Sum of £12,000 towards the kitchen and bathrooms therefore allowing the buyer input on design/specs.

 

EPC rating: Unknown. Council tax band: X, Tenure: Freehold,
Additional Information
Tenure:
Freehold
Rooms
Size
GF = 37sq.m
FF = 45sq.m
Disclaimer
We endeavour to make our sales particulars accurate and reliable, however, they do not constitute or form part of an offer or any contract and none is to be relied upon as statements of representation or fact. Any services, systems and appliances listed in this specification have not been tested by us and no guarantee as to their operating ability or efficiency is given. All measurements have been taken as a guide to prospective buyers only, and are not precise. If you require clarification or further information on any points, please contact us, especially if you are travelling some distance to view.
Ratings
Energy ratings and council tax ratings are yet to be confirmed.

Mortgage calculator

Calculate Your Stamp Duty
£
Results
Stamp Duty To Pay:
Effective Rate:
Tax Band % Taxable Sum Tax

PLOT 114 Off Field Head Road, Laceby, DN37

Struggling to find a property? Get in touch and we'll help you find your ideal property.

Interested in viewing this property?
Book a Viewing
Main menu