Standout Features
Detached Farmhouse
Approx 1/3 Acre Mature Plot
Complete Renovation Needed
Open Views to the Rear
Lounge & Dining Kitchen
G/F Bedroom 4 & Bathroom
Three Bedrooms Upstairs
Bathroom & Utility Room
No Forward Chain Involved
Detached Garage & Parking
Property Description
We are pleased to offer for this this interesting property which sits on approx. 1/3 acre of mature grounds. Open countryside views to the rear and within a quiet village location. *** Please note the property appears to require structural work as there are several signs of movement throughout. Whilst we are unable to identify exactly what is the cause of the movement, we would like to make all parties aware of this before arranging any viewings, should you require a mortgage for purchase we would strongly advise seeking clarification from your lender that this would meet their criteria ***
We are pleased to offer for this this interesting property which sits on approx. 1/3 acre of mature grounds. Open countryside views to the rear and within a quiet village location. *** Please note the property appears to require structural work as there are several signs of movement throughout. Whilst we are unable to identify exactly what is the cause of the movement, we would like to make all parties aware of this before arranging any viewings, should you require a mortgage for purchase we would strongly advise seeking clarification from your lender that this would meet their criteria ***
EPC rating: Unknown. Council tax band: X, Tenure: Freehold,
Rooms
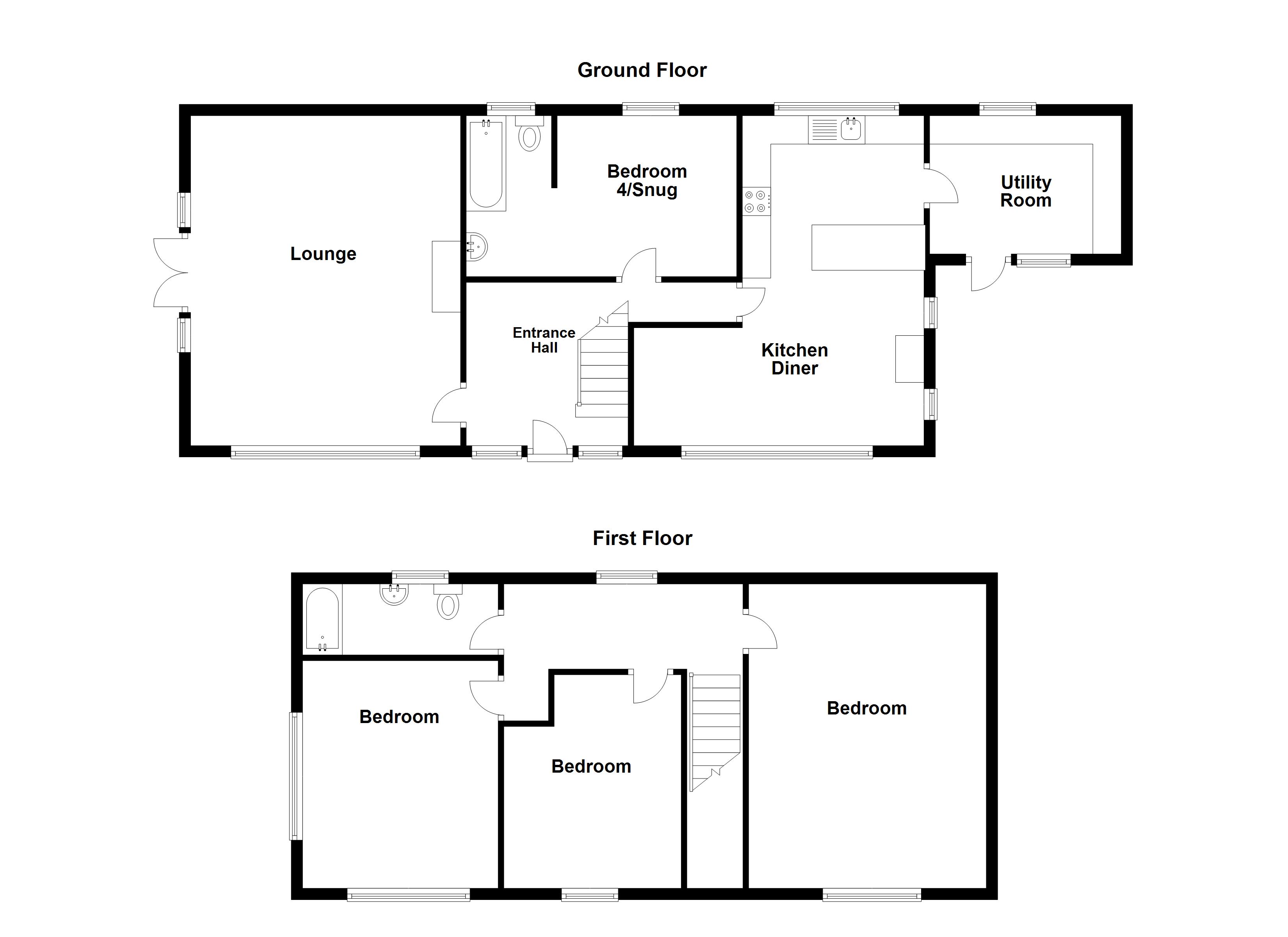
Entrance Hall
Part glazed uPVC entrance door with side panels. Feature fire surround with tiled inset and hearth. Balustrade and spindle staircase rising to the first floor accommodation with under stairs cupboard. Radiator.
Lounge
19.08m x 15.58m (62'7" x 51'2")
Dual aspect room overlooking the garden. Window to the front and French style doors opening to the garden. Feature fireplace with marble inset and hearth. Radiators.
Dining Kitchen
13.33m x 15.58m (43'9" x 51'2")
Triple aspect room with windows to the front, side and rear elevation. Fireplace with marble inset and hearth. Wood effect laminate flooring. Radiator. Cupboard housing the electric consumer unit. Fitted wall and base units with complementary worksurfaces incorporating a sink unit with mixer tap. Built in electric oven with hob and extractor over. Internal door to the utility room.
Utility Room
7.75m x 11.08m (25'5" x 36'4")
Windows to the front and rear and part glazed uPVC door to the front. Wall and base units with complementary worksurface. Floor standing oil fired central heating boiler. Plumbing for a washing machine. Wood effect flooring.
Bedroom 4 / Sitting Room
9.33m x 10.42m (30'7" x 34'2")
Window to the rear. Radiator. Open arch to the bathroom.
Ground Floor Bathroom
Window to the rear. Fitted with a three piece suite comprising panelled bath., pedestal wash hand basin and close coupled wc. Tiling to the walls and floor. Radiator.
Landing
Access to the three first floor rooms and bathroom. Window to the rear.
Bedroom One
12.17m x 14.33m (39'11" x 47'0")
Dual aspect room with windows to the front and side. Radiator.
Bedroom Two
8.75m x 8.92m (28'8" x 29'3")
Window to the front. Twin built in wardrobes and radiator.
Bedroom Three
14.92m x 13.5m (48'11" x 44'3")
Window to the front. Radiator.
Bathroom
14.83m x 4.75m (48'8" x 15'7")
Window to the rear. Fitted with a three piece suite comprising panelled bath, pedestal wash hand basin and close coupled wc. partially tiled and radiator.
Garage
Detached garage with electric roller shutter door.
Outside
The property sits on a mature plot of approx 1/3 of an acre. Detached garage to the rear of the plot. Double driveway gates open onto a block paved driveway providing off road parking for several vehicles.
Read more
Close
Mortgage calculator
All fields must be numbers
Calculate Your Stamp Duty
Results
Stamp Duty To Pay:
Effective Rate:
| Tax Band |
% |
Taxable Sum |
Tax |
Biergate, Grainthorpe, LN11
Struggling to find a property? Get in touch and we'll help you find your ideal property.