4 bedroom Land (Residential) For Sale

Grimsby Road, Louth, LN11

£120,000 | Available

4 Bedrooms
4 Bathrooms
3 Receptions

Grimsby Sales

Hampton House, 
Church Lane, 
Grimsby, 
DN31 1JR
Standout Features

Property Description

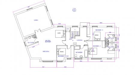
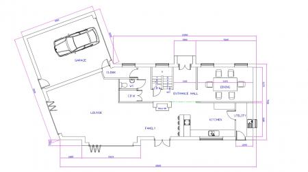
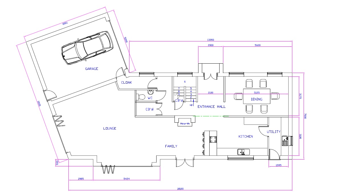
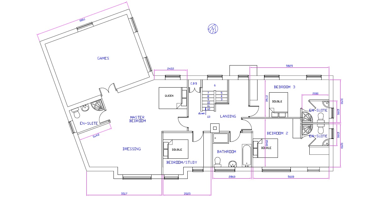
Located in the stunning market town of Louth this rare opportunity to acquire a building plot with full planning permission granted for a executive four bedroom family home. The current plans consist of entrance hall, cloakroom WC, dining room, open plan kitchen lounge family room, utility room, master bedroom with ensuite and dressing area, three additional double bedrooms two with ensuites and a family bathroom. As well as a attached garage with games room over. The plot measures at approximately 0.13 acre. More information regarding the planning permission can be accessed via the East Lindsey District Council Planning Portal using the Ref: N/105/00097/23

Located in the stunning market town of Louth this rare opportunity to acquire a building plot with full planning permission granted for a executive four bedroom family home. The current plans consist of entrance hall, cloakroom WC, dining room, open plan kitchen lounge family room, utility room, master bedroom with ensuite and dressing area, three additional double bedrooms two with ensuites and a family bathroom. As well as a attached garage with games room over. The plot measures at approximately 0.13 acre. More information regarding the planning permission can be accessed via the East Lindsey District Council Planning Portal using the Ref: N/105/00097/23

EPC rating: Exempt. Council tax band: X, Tenure: Freehold,
Additional Information
Tenure:
Freehold

Mortgage calculator

Calculate Your Stamp Duty
£
Results
Stamp Duty To Pay:
Effective Rate:
Tax Band % Taxable Sum Tax

Grimsby Road, Louth, LN11

Struggling to find a property? Get in touch and we'll help you find your ideal property.

Interested in viewing this property?
Book a Viewing
Main menu