Standout Features
Stunning Detached Log Cabin
Four Bedrooms
Gorgeous Views Over The Golf Course
Modern Kitchen with Appliances
Two Shower Rooms & Ensuite
Wrap Around Timber Decked Veranda
Parking to the Front
All Furnishings Included at Right Price
Property Description
A unique opportunity to purchase a Four Bedroom, Three Bathroom and Two Reception Rooms Norwegian Log Cabin on the prestige development of Kenwick Park, overlooking Kenwick Park Golf Course, an idea location for either a Holiday Home or for letting out via Kenwick Park Hotel for a monthly fee or privately letting out for short term rentals or again for holiday lets. The well presented interior features high quality fittings and furnishings which can be included at the right price.
A unique opportunity to purchase a Four Bedroom, Three Bathroom and Two Reception Rooms Norwegian Log Cabin on the prestige development of Kenwick Park, overlooking Kenwick Park Golf Course, an idea location for either a Holiday Home or for letting out via Kenwick Park Hotel for a monthly fee or privately letting out for short term rentals or again for holiday lets. The well presented interior features high quality fittings and furnishings which can be included at the right price.
EPC rating: Exempt. Council tax band: X, Tenure: Leasehold, Annual ground rent: £738.48, Annual service charge: £985.12,
Additional Information
Ground Rent:
£738 per year
Service Charge:
£985 per year
Rooms
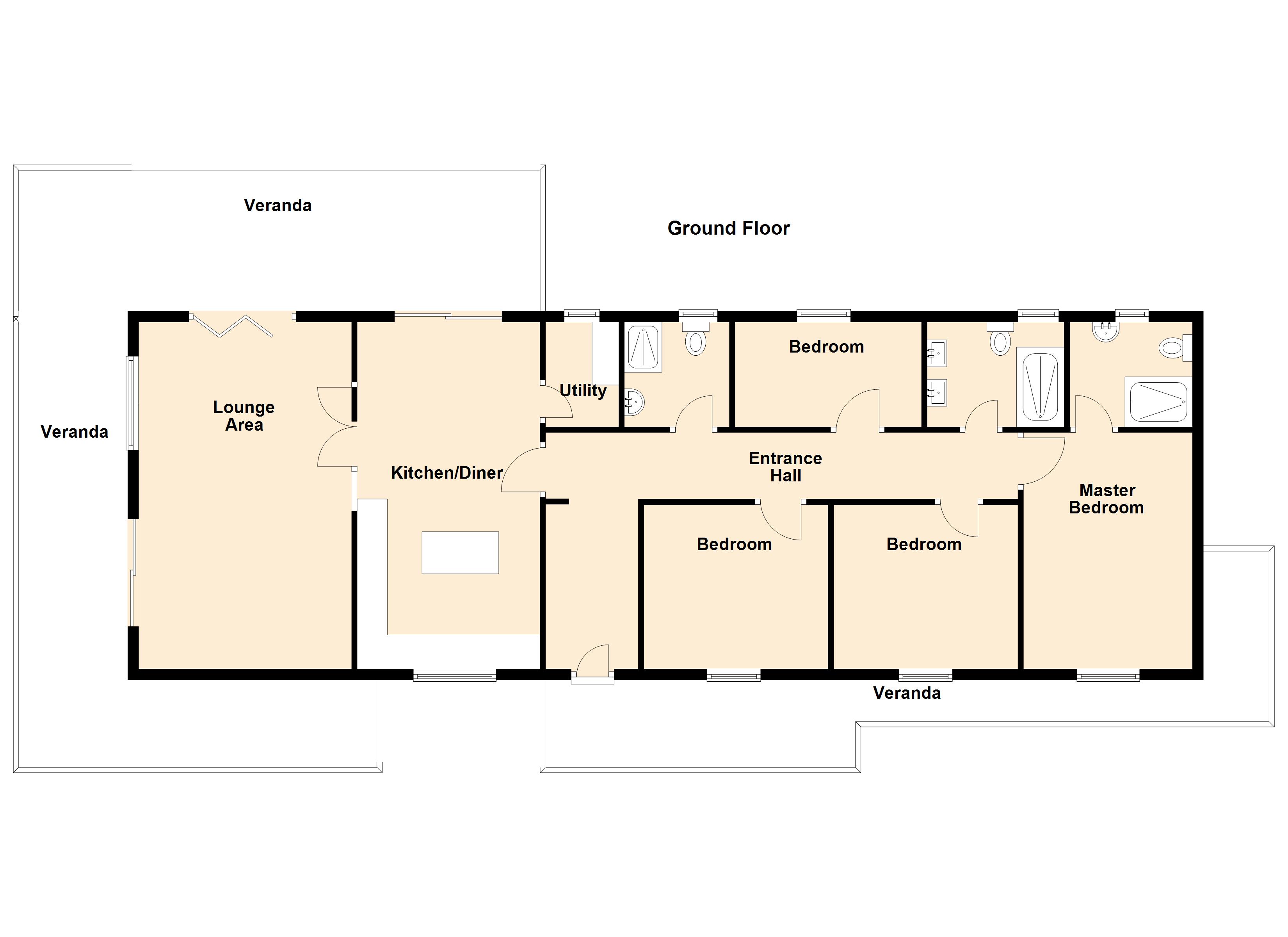
Entrance Hall
Part glazed entrance door to the front elevation. Telephone point. Electric radiators. Doors leading to the kitchen diner, all bedrooms and two shower rooms.
Kitchen Diner
11.08m x 21m (36'4" x 68'11")
Double glazed window to the front elevation and sliding patio door to the rear elevation out onto the timber decked veranda. Fitted with a range of stunning grey shaker style wall and base units with complementary wood effect worksurface over incorporating a single bowl Lamona composite sink unit with drainer and stainless steel mixer tap. Attractive brick style tiling to splash areas. Integrated appliances consisting of Beko oven to face height, four ring electric Belling hob with concealed extractor over. Integrated Lamona fridge, AEG freezer and Zanussi dishwasher. Matching island unit with breakfast bar area and additional storage. Electric radiator. Double doors opening into the lounge and door to the utility room.
Utility Room
Double glazed window to the rear elevation. Fitted shaker style base units matching those in the kitchen diner with single bowl stainless steel sink unit with mixer tap and drainer. Plumbing for washing machine. Hot water cylinder. Wall mounted electric consumer unit. Electric chrome heated towel rail.
Lounge
21m x 13m (68'11" x 42'8")
Sliding patio doors and floor to ceiling window to the side with bi folding doors to the rear elevation. TV aerial point. Numerous wall light points.
Master Bedroom
14m x 10.08m (45'11" x 33'1")
Double glazed window to the front elevation. TV aerial point. Electric radiator. Door leading to ensuite shower room.
Ensuite Shower Room
7.08m x 6.08m (23'3" x 19'11")
Double glazed window to the rear elevation. Fitted with a modern three piece suite comprising of a corner shower unit with mains shower over, dual flush close coupled WC and pedestal wash hand basin with light and electric shaver point over. Attractive tiling to walls. electric chrome heated towel rail. Extractor fan.
Bedroom Two
11.08m x 9.08m (36'4" x 29'10")
Double glazed window to the front elevation. Electric radiator.
Bedroom Three
11.08m x 9.08m (36'4" x 29'10")
Double glazed window to the front elevation. Electric radiator.
Bedroom Four
11.08m x 6.08m (36'4" x 19'11")
Double glazed window to the rear. Electric radiator.
Shower Room
7.08m x 6.08m (23'3" x 19'11")
Double glazed window to the rear elevation. Fitted with a modern suite comprising of a corner shower unit with mains shower over, close coupled dual flush WC and his and her vanity wash hand basins with mixer taps and storage below. Light and electric shaving point above. Attractive tiling to walls. Electric chrome heated towel rail. Extractor fan.
Additional Shower Room
6.42m x 5.5m (21'1" x 18'1")
Double glazed window to the rear elevation. Fitted with a modern three piece suite comprising of a corner shower unit with mains shower over, dual flush close coupled WC and pedestal wash hand basin with light and electric shaver point over. Attractive tiling to walls. electric chrome heated towel rail. Extractor fan.
Outside
Extensive wraparound veranda featuring balustrade and spindle rail with hardwood timber deck with opening to a lawned area at the rear and ramp access. Stunning open views towards and across the golf course. The large veranda offering plenty of areas for alfresco dining together with outside lighting. To the front the lodge has a open plan gravelled driveway.
Leasehold
Please note the property is lease hold on a 125 year lease from 27th March 2014
With a service charge payable quarterly at £246.28 and a Ground rent payable every 6 months at £360.24
Read more
Close
Mortgage calculator
All fields must be numbers
Calculate Your Stamp Duty
Results
Stamp Duty To Pay:
Effective Rate:
| Tax Band |
% |
Taxable Sum |
Tax |
Kenwick Retreat, Louth, LN11
Struggling to find a property? Get in touch and we'll help you find your ideal property.