5 bedroom Detached house For Sale

Plot 323 - Ascension View, Barton-upon-Humber, North Lincolnshire, DN18

£469,950 | Available

5 Bedrooms
3 Bathrooms
4 Receptions

Barton Upon Humber

9 King Street, 
Barton-upon-Humber, 
North Lincolnshire, 
DN18 5ER
Standout Features

Property Description

The Earl is a meticulously designed five-bedroom executive home, perfect for growing families or those looking to embrace a more spacious and luxurious lifestyle.

The Earl is a stunning five-bedroom detached home designed with modern family living in mind.

Its spacious open-plan kitchen, dining area, featuring a sunroom with french doors which open directly onto the rear garden – perfect for entertaining or family time.

A dedicated lounge and additional family room and a generous utility room add unparalleled living space, making The Earl the ideal choice for those seeking both style and functionality in their forever home. EPC rating: B. Council tax band: X, Tenure: Freehold,

Additional Information
Tenure:
Freehold
Rooms
ENTRANCE HALL
LOUNGE
5.3m x 3.84m (17'5" x 12'7")
FAMILY ROOM
3.28m x 2.71m (10'9" x 8'11")
KITCHEN/DINING AREA
9.12m x 3.67m (29'11" x 12'0")
SUNROOM
4.27m x 3.39m (14'0" x 11'1")
UTILITY ROOM
CLOAKROOM WC
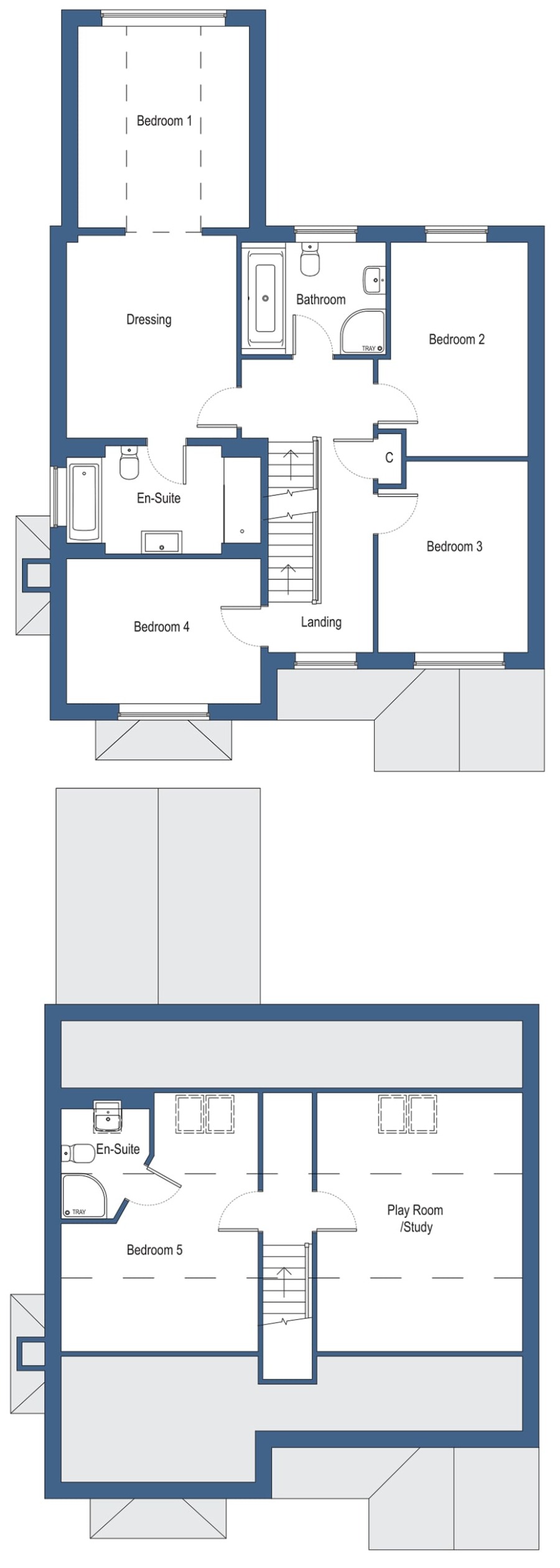
FIRST FLOOR ACCOMMODATION:
PRINCIPAL BEDROOM
4.13m x 3.39m (13'7" x 11'1")
DRESSING ROOM
3.81m x 3.36m (12'6" x 11'0")
EN-SUITE
BEDROOM TWO
4.23m x 2.96m (13'11" x 9'9")
BEDROOM THREE
3.78m x 2.96m (12'5" x 9'9")
BEDROOM FOUR
3.84m x 3.07m (12'7" x 10'1")
FAMILY BATHROOM
SECOND FLOOR ACCOMMODATION:
BEDROOM FIVE
5.12m x 3.89m (16'10" x 12'9")
EN-SUITE
PLAYROOM / STUDY
5.12m x 4.06m (16'10" x 13'4")
OUTSIDE THE PROPERTY:
REAR ELEVATION

The rear garden provides the perfect space for children or pets, being fully enclosed.

DETACHED GARAGE
SECURITY

All Keigar homes include an electronically fitted alarm system, high specification door and window locks. Smoke alarms to each floor.

ENVIRONMENTAL CREDENTIALS

All Keigar homes have high levels of insulation as standard and are built with the most recent building regulations with, wherever possible, natural materials and timber from sustainable sources.

WARRANTY

All Keigar homes include a 10 year LABC warranty for added peace of mind.


Mortgage calculator

Calculate Your Stamp Duty
£
Results
Stamp Duty To Pay:
Effective Rate:
Tax Band % Taxable Sum Tax

Plot 323 - Ascension View, Barton-upon-Humber, North Lincolnshire, DN18

Struggling to find a property? Get in touch and we'll help you find your ideal property.

Interested in viewing this property?
Book a Viewing
Main menu