5 bedroom Detached house Sold STC

Plot 56 - Ferry Road, Barrow-upon-Humber, North Lincolnshire, DN19

£424,950 | SSTC

5 Bedrooms
3 Bathrooms
4 Receptions

Barton Upon Humber

9 King Street, 
Barton-upon-Humber, 
North Lincolnshire, 
DN18 5ER
Standout Features

Property Description

The Buckingham is a thoughtfully designed five-bedroom executive home, perfectly suited for growing families or those seeking a spacious upgrade.

The Buckingham is a luxury family home designed for modern living.

Its contemporary open-plan kitchen and dining area, complete with French doors and side screens, seamlessly connects to the rear garden – perfect for for family gatherings.

A dedicated study and a spacious utility room add practicality, making it ideal for a busy family lifestyle.

EPC rating: B. Council tax band: X, Tenure: Freehold,
Additional Information
Tenure:
Freehold
Rooms
ENTRANCE HALL
LOUNGE
5.27m x 3.84m (17'3" x 12'7")
FAMILY ROOM
3.28m x 2.71m (10'9" x 8'11")
FAMILY / DINING
5.36m x 4.6m (17'7" x 15'1")
KITCHEN
4.6m x 3.38m (15'1" x 11'1")
UTILITY ROOM
WC
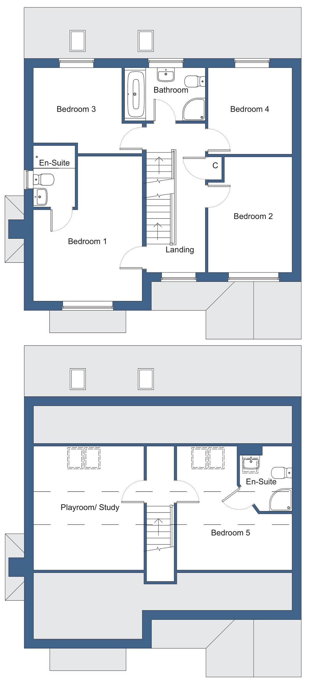
FIRST FLOOR ACCOMMODATION:
BEDROOM ONE
5.1m x 3.84m (16'9" x 12'7")
EN-SUITE
BEDROOM TWO
4.07m x 2.96m (13'4" x 9'9")
BEDROOM THREE
3.12m x 3.02m (10'3" x 9'11")
BEDROOM FOUR
3.05m x 2.96m (10'0" x 9'9")
FAMILY BATHROOM
SECOND FLOOR ACCOMMODATION:
BEDROOM FIVE
4.37m x 4.06m (14'4" x 13'4")
EN-SUITE
PLAYROOM / STUDY
4.37m x 3.89m (14'4" x 12'9")
OUTSIDE THE PROPERTY:
REAR ELEVATION
The rear garden provides the perfect space for children or pets, being fully enclosed.
DETACHED GARAGE
SECURITY
All Keigar homes include an electronically fitted alarm system, high specification door and window locks. Smoke alarms to each floor.
ENVIRONMENTAL CREDENTIALS
All Keigar homes have high levels of insulation as standard and are built with the most recent building regulations with, wherever possible, natural materials and timber from sustainable sources.
WARRANTY
All Keigar homes include a 10 year LABC warranty for added peace of mind.

Mortgage calculator

Calculate Your Stamp Duty
£
Results
Stamp Duty To Pay:
Effective Rate:
Tax Band % Taxable Sum Tax

Plot 56 - Ferry Road, Barrow-upon-Humber, North Lincolnshire, DN19

Struggling to find a property? Get in touch and we'll help you find your ideal property.

Interested in viewing this property?
Book a Viewing
Main menu