3 bedroom Semi-detached house Sold STC

PLOT 84 - Off Fieldhead Road, Laceby, DN37

£245,000 | SSTC

3 Bedrooms
2 Bathrooms
2 Receptions

Grimsby Sales

Hampton House, 
Church Lane, 
Grimsby, 
DN31 1JR
Standout Features

Property Description

4x New build semi-detached houses with 10 year build warranty's. 

With 10 Year Build Warranty's.. Register Your Interest Today!!

Lovelle have the pleasure of offering to market 4x brand new semi-detached houses (plots 84,85,87,88) built by locally renowned family name and highly reputable builders 'John Roe Homes'. 

These spacious and thoughtfully designed three bedroom semi-detached houses are situated within the highly desirable NEW DEVELOPMENT in Laceby Village off Fieldhead Road. Positioned well for the vast range of local village amenities, open countryside walking routes and ease of access to nearby Grimsby Town Centre. 

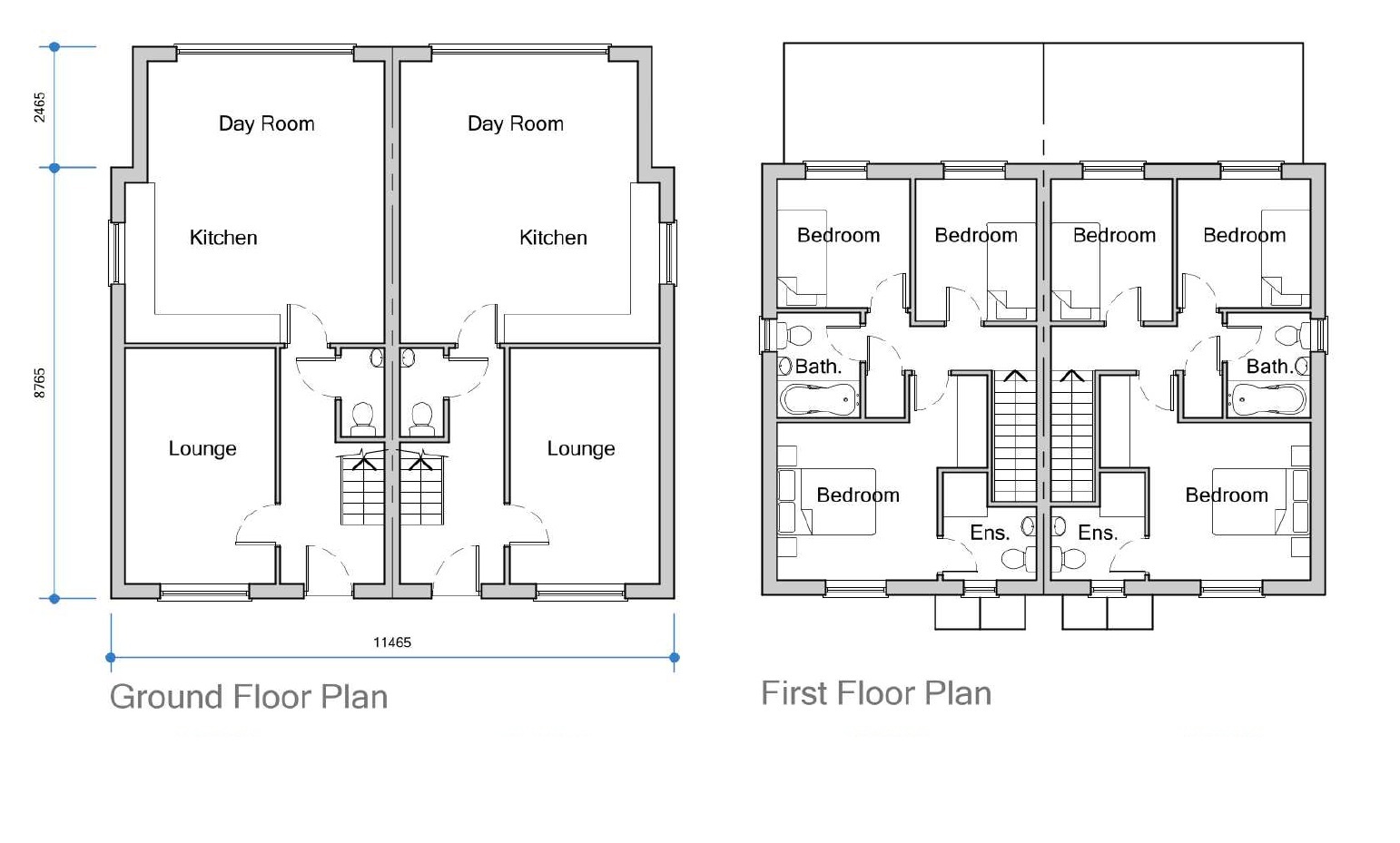
The accommodation will briefly comprise of; entrance hall, cloakroom, lounge, open plan kitchen and family room, three bedrooms, en-suite and bathroom. The internal specification and finish will be to an extremely high standard, which is why it's advised to register your interest and book an appointment to view the show home today!

Externally there will be a driveway that stretches down the side of the property to a single garage (garage is plot dependent). To the rear of the property will be an enclosed and incredibly generous garden. With the latest high quality insulation, gas central heating system and uPVC double glazing - these homes are incredibly efficient and cost effective.

Don’t miss out on this fantastic opportunity, call to arrange your site visit or reserve a property today!  EPC rating: Unknown. Council tax band: X, Tenure: Freehold,

Additional Information
Tenure:
Freehold
Rooms
Size

GF = 63sq.m
FF = 50sq.m

Disclaimer

We endeavour to make our sales particulars accurate and reliable, however, they do not constitute or form part of an offer or any contract and none is to be relied upon as statements of representation or fact. Any services, systems and appliances listed in this specification have not been tested by us and no guarantee as to their operating ability or efficiency is given. All measurements have been taken as a guide to prospective buyers only, and are not precise. If you require clarification or further information on any points, please contact us, especially if you are travelling some distance to view.

Ratings

Energy ratings and council tax ratings are yet to be confirmed.


Mortgage calculator

Calculate Your Stamp Duty
£
Results
Stamp Duty To Pay:
Effective Rate:
Tax Band % Taxable Sum Tax

PLOT 84 - Off Fieldhead Road, Laceby, DN37

Struggling to find a property? Get in touch and we'll help you find your ideal property.

Interested in viewing this property?
Book a Viewing
Main menu