4 bedroom Town house To Let

Abbey Road, Grimsby, DN32

£1,150 PCM | Available

4 Bedrooms
1 Bathrooms

Grimsby Lettings

Hampton House, 
Church Lane, 
Grimsby, 
DN31 1JR
Property Description

Available Soon
Lovelle's are proud to offer this large period four bedroomed semi detached home, located close to the town centre.

Available Soon
Lovelle's are proud to offer this large period four bedroomed semi detached home, located close to the town centre.

Area description
Close to Peoples Park, walking distance to the town centre and transport links.

Property description
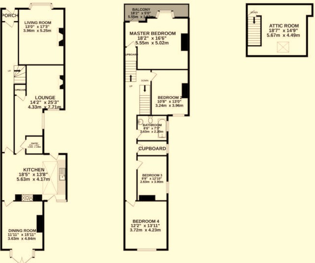
This spacious property is spread over three floors with gas central heating and double glazing. The property comprises of, hallway, lounge, day room, kitchen/breakfast room, dining room with patio doors to the rear garden. To the first floor is a master bedroom with balcony to the front elevation of the property and a further spacious 3 double bedrooms and family bathroom with shower over bath. The second floor is a large converted attic room that can be used for games/music room. Garden to the rear and driveway to the front of the property.

Water - Anglian Water
Sewerage – Mains drainage
Broadband - According to Ofcom the following is available: Standard 15 mbps, Superfast 80 mbps, Ultrafast 10000 mbps
Mobile Signal – According to Ofcom the coverage is detailed as being variable in-home and variable to good outdoor
Parking – Driveway
EPC Rating E
Council Tax Band D

Tenancy Information:

Rent: £1150 per calendar month (£265.38 per week)
Deposit: £1326

Your income must be a minimum of £34,500 Guarantor (if needed) income £41,400

A holding deposit of £265.38 (one week’s rent) is required to reserve the property when your application has been agreed for formal referencing. Once your application has been approved, this amount will be deducted from the combined balance of the first month’s rent and deposit as detailed that will be due.

Please note bills are not included at this property. All bills including Gas, electric, council tax, water and broadband are responsibility of the tenant. If the property has an oil fired system then the tenant will need to return this filled to the received level.

For a list of permitted tenant fees please visit our website.

Further Property Information available:

If you would like any further specific information relating to this property, please call or email our team.

Agent information:

Lovelle Estate Agency is a member of the ‘Property Mark Client Money Protection’ scheme and a member of ‘The Property Ombudsman’ redress scheme. Further details are available on our website: www.lovelle.co.uk and please select the relevant branch.
EPC rating: E. Council tax band: D,

Additional Information
Council Tax Band:
D

Abbey Road, Grimsby, DN32

Struggling to find a property? Get in touch and we'll help you find your ideal property.

Interested in viewing this property?
Book a Viewing
Main menu