2 bedroom Semi-detached house For Sale

Beaver Road, Beverley, East Riding of Yorkshire, HU17

£225,000 | Available

2 Bedrooms
1 Bathrooms
1 Receptions

Cottingham

Unit 4 Kings Parade, 
King Street, 
Cottingham, 
East Riding, 
HU16 5QQ
Standout Features

Property Description

An exciting opportunity for a brand new two bedroom semi detached in the heart of Beverley. Call to discuss today! 

Lovelle are proud to offer to market a brand new two bedroom semi detached house on the popular Beaver Road. 

Ideal for first time buyers, this property offers a light and airy reception room, stylish kitchen diner, two generous bedrooms, enclosed garden, parking space and much much more!

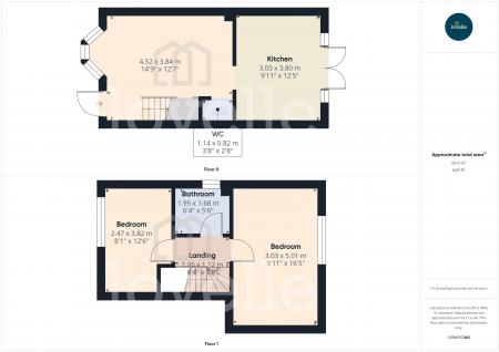
To the ground floor is a living room perfect for relaxing and entertaining, a guest WC and to the rear of the property a kitchen diner that opens onto the enclosed rear garden. To the first floor are two generous bedrooms and a well appointed family bathroom. 

Call Lovelle today to discuss and arrange your viewing! EPC rating: Unknown. Council tax band: X, Tenure: Freehold,

Additional Information
Tenure:
Freehold
Rooms
Living room
4.52m x 3.84m (14'10" x 12'7")

A light and airy living room with bay window and entrance door to the front elevation. Access to kitchen and guest WC. Stairs leading to first floor.

Kitchen
3.05m x 3.8m (10'0" x 12'6")

A stylish kitchen diner featuring a mix of base and wall units in Nordic Blue. The kitchen also benefits from integrated oven, hob and extractor. Doors lead onto the enclosed rear garden.

Bedroom
3.03m x 5.01m (9'11" x 16'5")

A generous bedroom with window to the rear elevation.

Bedroom
2.47m x 3.82m (8'1" x 12'6")

A generous bedroom with window to the front elevation.

Bathroom
1.95m x 1.68m (6'5" x 5'6")

A well appointed bathroom featuring a three piece suite.

Outside

The property benefits from a parking space located next to the properties. To the front is a front garden and path leading to door and passage to the rear garden. To the rear is an enclosed garden perfect for relaxing and entertaining.


Mortgage calculator

Calculate Your Stamp Duty
£
Results
Stamp Duty To Pay:
Effective Rate:
Tax Band % Taxable Sum Tax

Beaver Road, Beverley, East Riding of Yorkshire, HU17

Struggling to find a property? Get in touch and we'll help you find your ideal property.

Interested in viewing this property?
Book a Viewing
Main menu