3 bedroom Detached house For Sale

Lumley Fields, Skegness, PE25

£314,950 | Available

3 Bedrooms
3 Bathrooms
1 Receptions

Skegness

13 Roman Bank, 
Skegness, 
PE25 2SA
Standout Features

Property Description

This beautiful house features roof-mounted solar panels and an integrated EV charger, ensuring convenience and future-readiness. Modern design, eco-friendly technology and low running costs, the perfect combination for today's lifestyle.  Accommodation comprises entrance hall, downstairs wc, lounge, kitchen-diner with French doors to the garden.  Upstairs there is a master bedroom with En-suite, fitted wardrobes, second bedroom, family bathroom and third bedroom/study!  The property has a front and rear garden, driveway and single garage!  The property will be fitted to a beautiful modern standard throughout.

 

 

This beautiful house features roof-mounted solar panels and an integrated EV charger, ensuring convenience and future-readiness. Modern design, eco-friendly technology and low running costs, the perfect combination for today's lifestyle.  Accommodation comprises entrance hall, downstairs wc, lounge, kitchen-diner with French doors to the garden.  Upstairs there is a master bedroom with En-suite, fitted wardrobes, second bedroom, family bathroom and third bedroom/study!  The property has a front and rear garden, driveway and single garage!  The property will be fitted to a beautiful modern standard throughout. EPC rating: A. Council tax band: X, Tenure: Freehold,

Additional Information
Tenure:
Freehold
Rooms
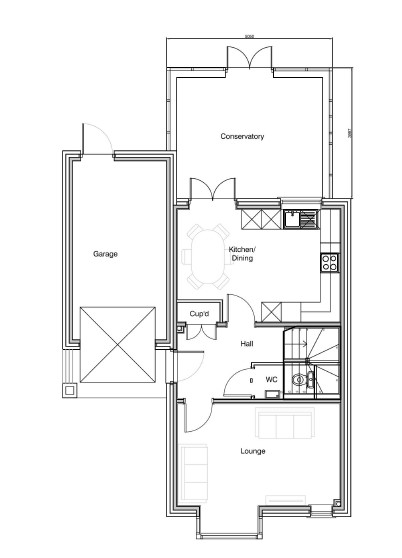
Hall

Entered via composite front door with radiator, storage cupboard, stairs to first floor, doors to;

WC

Fitted with low level wc, wash hand basin, radiator.

Lounge

UPVC bay window to the front aspect, radiator.

Kitchen-Diner

UPVC window to the rear aspect, radiator, with fitted kitchen; standard and upgraded finishes available. Standard kitchen comprises of fitted base and wall cupboards, work surface, inset sink, integrated oven and hob with extractor fan over, space and plumbing for appliances of choice, combi boiler, patio doors to;

Conservatory
4.6m x 4m (15'1" x 13'1")

Of UPVC and brick construction, with patio doors to the rear garden.

Landing

Loft access, doors to;

Bedroom one

UPVC bay window to the front aspect, radiator, two fitted wardrobes, door to;

En-Suite

UPVC window to the front aspect, shower enclosure, low level wc, wash hand basin, ladder style radiator.

Bedroom Two

UPVC window to the rear aspect, radiator.

Bedroom Three

UPVC window to the rear aspect, radiator.

Bathroom

UPVC window to the side aspect, ladder style radiator, panelled bath, low level wc, wash hand basin.

Outside

In the agents opinion this property offers a very large plot, with a rear garden of approx. 12.9 m (42') x 14.5 m (48') and a conservatory 4.60x 4.00, in a superior position at the rear of the development with no neighbours to the rear and the tree lined King George V walk to the rear. Further there is a driveway leading to single garage (power and light).

NB

The photos shown on this brochure are from other plots/designs and are to for illustrative purposes to give an example of the quality and finish.

Services

The property has mains, water, sewerage and electricity and gas central heating. We have not tested any heating systems, fixtures, appliances or services. Lovelle Estate Agency and our partners provide a range of services to buyers, although you are free to use an alternative provider. If you require a solicitor to handle your purchase and/or sale, we can refer you to one of the panel solicitors we use. We may receive a fee if you use their services. If you need help arranging finance, we can refer you to the Mortgage Advice Bureau who are in-house. We may receive a fee if you use their services.

Location

Located on the popular Lumley Fields development built by Manorcrest Homes. Very popular area benefitting from good local amenities including doctors, petrol station, pubs, supermarket, bus services and post office within half a mile. The lovely sandy beach, railway station and town centre are also only just over a mile away.

Directions

From our office on Roman bank proceed along Roman Bank to The Ship traffic lights. Turn left onto Burgh Road. Opposite the Esso petrol station turn right onto Churchill Avenue. Continue along until you get to the mini roundabout. Go straight on at the round about and at the bottom turn right and the house can be found on the left hand side.

Local Authority

This property falls within the geographical area of East Lindsey District Council - 01507 601111.
https//www.e-lindsey.gov.uk/

Viewing

By appointment with the Sole Agent Lovelle Estate Agency, telephone 01754 769769. We recommend prior to making an appointment to view, prospective purchasers discuss any particular points likely to affect their interest in the property with one of our property consultants who have seen the property in order that you do not make a wasted journey.

By appointment with the Sole Agent Lovelle Estate Agency, telephone 01754 769769. We recommend prior to making an appointment to view, prospective purchasers discuss any particular points likely to affect their interest in the property with one of our property consultants who have seen the property in order that you do not make a wasted journey.

How to make and offer

If you are interested in this property then it is important that you contact us at your earliest convenience. We will require certain pieces of personal information from you in order to provide a professional service to you and our client. The personal information you have provided to us may be shared with our client, the seller, but it will not be shared with any other third parties without your consent other than the stated reasons detailed within our privacy policy. More information on how we hold and process your data is available on our website https://www.lovelle.co.uk/privacy-policy/ and you can opt-out at any time by simply contacting us. For any offer, you wish to make we will need to establish certain details before negotiation can take place. This is so that our vendor can make an informed choice when negotiating and accepting your offer. You will be asked to provide formal I.D. and address verification, as required under the new Money Laundering Legislation.

Mortgage Advice

You might also have one or two questions for us, such as which solicitor to choose, or which mortgage lender has the best offers available for me. We have a one-stop shop to satisfy all of these needs so please ask. Budgeting correctly and choosing the right mortgage for a move is vital. For independent mortgage and insurance, advice call our mortgage advisor on 01754 769769 to arrange an appointment.

Energy Performance Certificate

A copy of the full Energy Performance Certificate for this property is available upon request unless exempt. Advisory Notes - Please be advised if you are considering purchasing a property for Buy To Let purposes, from 1st April 2018 without an EPC rated E or above it will not be possible to issue a new tenancy, or renew an existing tenancy agreement.

Agents Notes

These particulars are for guidance only. Lovelle Estate Agency, their clients and any joint agents give notice that:- They have no authority to give or make representation/warranties regarding the property, or comment on the SERVICES, TENURE, and RIGHT OF WAY of any property. These particulars do not form part of any contract and must not be relied upon as statements or representations of fact. All measurements/areas are approximate. The particulars including photographs and plans are for guidance only and are not necessarily comprehensive.


Mortgage calculator

Calculate Your Stamp Duty
£
Results
Stamp Duty To Pay:
Effective Rate:
Tax Band % Taxable Sum Tax

Lumley Fields, Skegness, PE25

Struggling to find a property? Get in touch and we'll help you find your ideal property.

Interested in viewing this property?
Book a Viewing
Main menu