3 bedroom End of terrace house For Sale

Queen Street, Louth, LN11

£168,000 | Available

3 Bedrooms
1 Bathrooms
2 Receptions

Grimsby Sales

Hampton House, 
Church Lane, 
Grimsby, 
DN31 1JR
Standout Features

Property Description

Lovelle Estate Agency are delighted to bring to the market this immaculately presented three bedroom period townhouse located in the heart of the market town of Louth. The spacious accommodation briefly comprises of lounge, dining room, kitchen, three bedrooms and first floor bathroom. This property is been offered with No Onward Chain.

Lovelle Estate Agency are delighted to bring to the market this immaculately presented three bedroom period townhouse located in the heart of the market town of Louth. The spacious accommodation briefly comprises of lounge, dining room, kitchen, three bedrooms and first floor bathroom. This property is been offered with No Onward Chain. EPC rating: E. Council tax band: A, Tenure: Freehold,

Additional Information
Tenure:
Freehold
Council Tax Band:
A
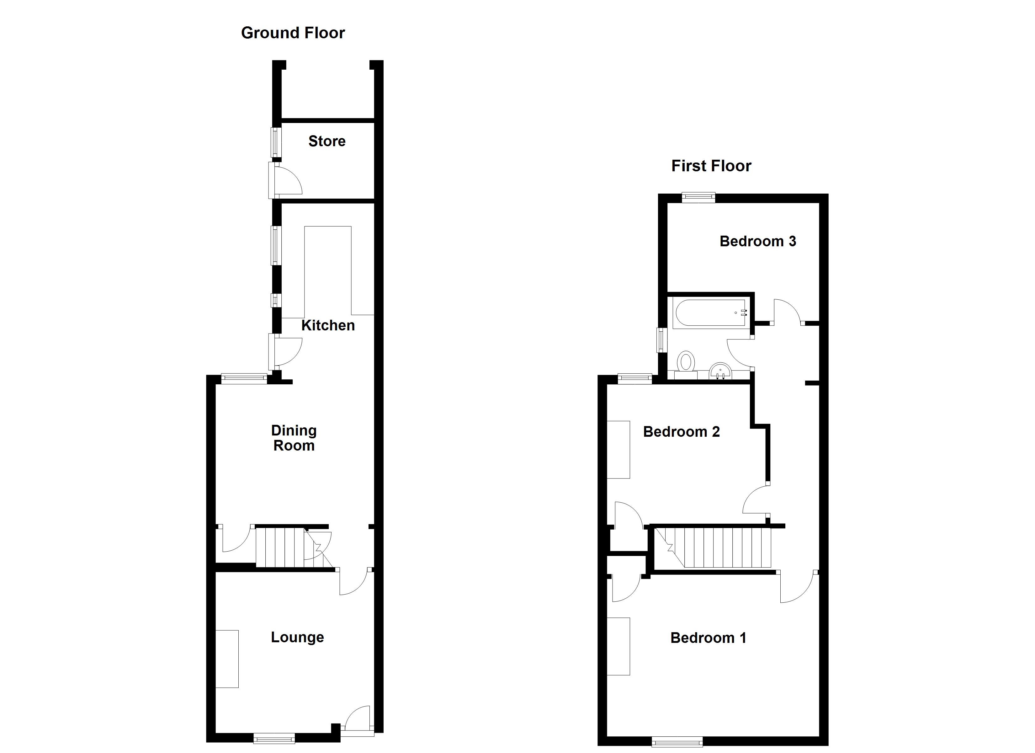
Rooms
Lounge
3.38m x 3.35m (11'1" x 11'0")

Hardwood entrance door and sash window to the front elevation. The focal point of the lounge is the stunning feature cast iron fire place with wooden surround and open grate. Cupboard to the side of chimney breast housing the electric and gas meters as well as the consumer unit. Radiator. Door to inner hall.

Inner Hall

Access to the under stair storage cupboard. Opening to the dining room.

Dining Room
3.05m x 3.35m (10'0" x 11'0")

Sash window to the rear elevation. Door opening to the enclosed staircase rising to the first floor accommodation. Telephone point. Radiator. Open to the kitchen.

Kitchen
3.68m x 1.85m (12'1" x 6'1")

UPVC entrance door and two sash windows to the side elevation. Fitted with a stunning range of grey matte finish shaker style wall and base units with complementary worksurfaces incorporating a composite single bowl Lamona sink with drainer and stainless steel mixer tap. Built in Lamona electric fan oven with four ring Cooke and Lewis ceramic hob and stainless steel chimney style extractor over. Attractive brick style tiling to splash areas. Plumbing for washing machine.

Landing

Doors leading to all bedrooms and the bathroom. Access provided to the loft space via the loft hatch. Wall mounted gas fired Viessman combination boiler. Radiator.

Master Bedroom
3.38m x 4.57m (11'1" x 15'0")

Sash window to the front elevation. Feature cast iron open grate fire place. Over the stair cupboard. Radiator

Bedroom Two
3.05m x 3.05m (10'0" x 10'0")

Sash window to the rear elevation. Over the stair cupboard. Radiator

Bedroom Three
1.83m x 3.07m (6'0" x 10'1")

Sash window to the rear elevation. Radiator.

Bathroom
1.83m x 1.83m (6'0" x 6'0")

UPVC double glazed window to the side elevation. fitted with a modern three piece suite comprising of a P-Shaped panelled bath with mains rainfall effect shower over with additional handheld attachment, concealed cistern dual flush WC and vanity wash hand basin with stainless steel mixer tap and storage below. Attractive tiling to splash areas. Extractor fan. Chrome heated towel rail.

Outside

The low maintenance rear courtyard can be accessed from the kitchen door or the pedestrian passage to the side of the property accessed through a wrought iron gate. The passageway provides a pedestrian right of way for both this property and the neighbour.

The rear garden is predominately laid with patio paving with a gravelled boarder. A combination of timber fencing and boundary walls make up the perimeters.

To the rear of the property is a store area measuring at 5'05 ft x 6'11 ft which benefits from power. There is also a open aspect sheltered space looking out towards the garden benefitting from lighting.

Disclaimer

We endeavour to make our sales particulars accurate and reliable, however, they do not constitute or form part of an offer or any contract and none is to be relied upon as statements of representation or fact. Any services, systems and appliances listed in this specification have not been tested by us and no guarantee as to their operating ability or efficiency is given. All measurements have been taken as a guide to prospective buyers only, and are not precise. If you require clarification or further information on any points, please contact us, especially if you are travelling some distance to view.

Mobile and Broadband Checker

It is advised that prospective purchasers visit checker . ofcom . org . uk in order to review available wifi speeds and mobile connectivity at the property.


Mortgage calculator

Calculate Your Stamp Duty
£
Results
Stamp Duty To Pay:
Effective Rate:
Tax Band % Taxable Sum Tax

Queen Street, Louth, LN11

Struggling to find a property? Get in touch and we'll help you find your ideal property.

Interested in viewing this property?
Book a Viewing
Main menu