3 bedroom Plot For Sale

Beck Hill, Tealby, LN8

£250,000 | Available

3 Bedrooms
1 Bathrooms
1 Receptions

Market Rasen

13 Queen Street, 
Market Rasen, 
Lincolnshire, 
LN8 3EH
Standout Features

Property Description

EXCEPTIONAL BUILDING PLOT IN SOUGHT AFTER VILLAGE LOCATION. Rare opportunity to build an EXECUTIVE DETACHED FAMILY HOME. 

EXCEPTIONAL BUILDING PLOT IN SOUGHT AFTER VILLAGE LOCATION. Rare opportunity to build an EXECUTIVE DETACHED FAMILY HOME. 

PLANNING NUMBER - 143877. The planning is to build a new exceptional  property. This is an extremely rare proposition to build within such a prominent and prestigious position within the conservation area of Tealby.

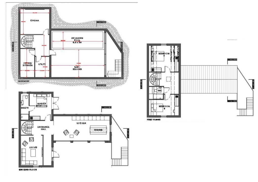
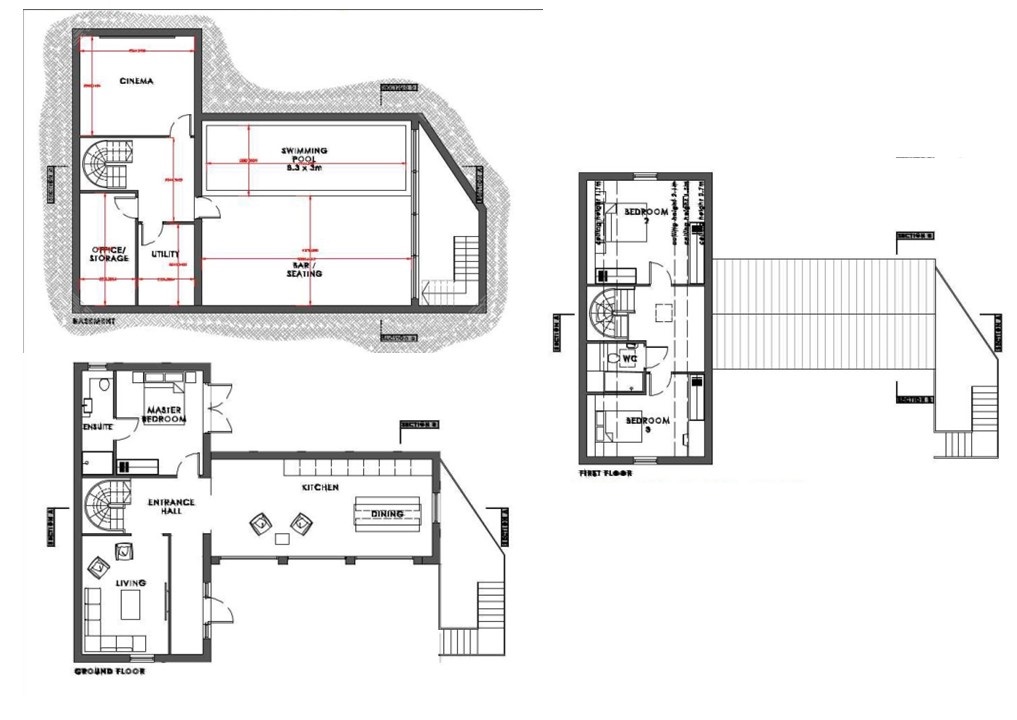
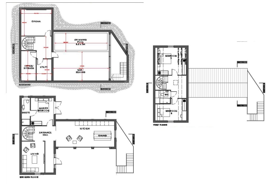
The building plot at Beck Hill, Tealby, offers a unique opportunity for buyers to construct their ideal home with two available build options . 

 

Option one

A two story, 3 bedroom home. 

Ideal for those seeking a budget-friendly, attractive build. Using high quality materials and focusing on

modern, cost-effective design elements. Maximising space and light while ensuring comfort and style. 

 

Option two offers a premium build choice.

This option includes a basement level with pool, gym, cinema and entertainment area. Again featuring high-end materials and bespoke finishes for those looking to invest in luxury and custom detailing. 

 

Both options are tailored to fit the scenic surroundings of Tealby, blending contemporary living with the area's charming countryside character.

 

Detailed drawings have already been drawn up to build the Ground and First floor if this was a desired option.  A quote of £165,000 has been obtained to build. EPC rating: Exempt. Council tax band: X, Tenure: Freehold,

Additional Information
Tenure:
Freehold
Rooms
Agents Notes

These particulars are for guidance only. Lovelle Estate Agency, their clients and any joint agents give notice that:- They have no authority to give or make representation/warranties regarding the property, or comment on the SERVICES, TENURE and RIGHT OF WAY of any property.
These particulars do not form part of any contract and must not be relied upon as statements or representation of fact. All measurements/areas are approximate. The particulars including photographs and plans are for guidance only and are not necessarily comprehensive.

Next Steps

Successful buyers will be required to complete anti-money laundering checks. Our partner, Hipla, will carry out the initial checks on our behalf. The current non-refundable cost is £24 inc. VAT per person. You’ll need to pay this and complete all checks before we can issue a memorandum of sale. The cost includes obtaining relevant data and any manual checks and monitoring that might be required.


Mortgage calculator

Calculate Your Stamp Duty
£
Results
Stamp Duty To Pay:
Effective Rate:
Tax Band % Taxable Sum Tax

Beck Hill, Tealby, LN8

Struggling to find a property? Get in touch and we'll help you find your ideal property.

Interested in viewing this property?
Book a Viewing
Main menu