3 bedroom Town house For Sale

Newbridge Hill, Louth, LN11

£230,000 | Available

3 Bedrooms
1 Bathrooms
2 Receptions

Grimsby Sales

Hampton House, 
Church Lane, 
Grimsby, 
DN31 1JR
Standout Features

Property Description

This immaculate three-storey semi-detached townhouse, located in a popular residential area near the town centre, features two welcoming reception rooms, a modern kitchen with garden views, three double bedrooms including a master with en-suite, two bathrooms, a garage & parking, and a private rear garden, making it an ideal choice for families and couples.

Welcome to this immaculate semi-detached property - a three-storey townhouse that is on the market and waiting just for you. It is a real gem, nestled in a popular residential area, close to the heart of the town centre. With public transport links and local amenities within easy reach, you will find everything you need right on your doorstep. This includes nearby schools, making it an ideal choice for families and couples alike. As you step inside, you will be greeted by two welcoming reception rooms. The first one is an open-plan delight that smoothly transitions into the living kitchen and utility room. The kitchen itself is a dream with modern appliances, spacious modern units, and an abundance of natural light. It also features a dining space with a garden view that is sure to make your meals more enjoyable. The other reception room uniquly located on the 1st floor, boasts large windows and a fireplace, adding a touch of warmth and cosiness to the space. The property features three double bedrooms, one of which is a master bedroom with built-in wardrobes and an en-suite shower room. A total of two bathrooms are available, including a family bathroom on the first floor. Unique features such as a parking and garage to the reear, for secure parking and a private rear garden for outdoor relaxation make this property even more appealing. This property is beautifully presented and ready to be your new home. It has been designed with comfort, convenience, and style in mind, making it a must-see. EPC rating: C. Council tax band: C, Tenure: Freehold,

Additional Information
Tenure:
Freehold
Council Tax Band:
C
Rooms
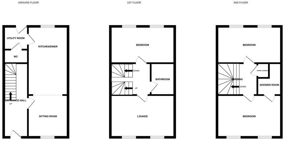
Entrance hall

Welcoming spacious entrance hall with balustrade and spindle staircase rising to the first floor accommodation with useful under stairs area. Wood effect laminate flooring and new carpets to the stairs. Radiator. Door leading to the living kitchen.

Living Dining Kitchen

Bright and airy room with windows to the front and rear. Great hub of the home for a family!

Sitting Area
2.77m x 2.77m (9'1" x 9'1")

Tile effect laminate flooring. Radiator and TV aerial point.

Dining Kitchen Area
4.88m x 2.77m (16'0" x 9'1")

Fitted with modern wall and base units with complementary worksurface incorporating 1/2 bowl sink unit with mixer tap. Attractive tiling to the splash areas. Built in electric oven, gas hob and chimney extractor hood over. Integrated dishwasher. Continuation of the tile effect laminate flooring. Radiator. Door leading to the utility room.

Utility Room
1.78m x 1.65m (5'10" x 5'5")

Glazed uPVC door leading to the rear garden. Fitted with modern wall and base units with complementary worksurface. Sink unit with mixer tap. Attractive metro style tiling to the splash areas. Wood effect luxury vinyl tiling to the floor. Space and plumbing for a washing machine. Wall hung gas fired central heating boiler. Internal door to the cloakroom wc.

Cloakroom WC

Fitted with a modern two piece suite comprising close coupled wc and wash hand basin. Continuation of the wood effect luxury vinyl tiled flooring. Radiator.

First Floor Landing

Spindle and balustrade staircase to the second floor accommodation. Radiator. Doors leading to lounge and bedroom three.

Lounge
2.77m x 4.6m (9'1" x 15'1")

Twin double glazed windows to the front elevation. Oak fire surround, marble inset and hearth incorporating an electric living flame fire. Radiator. and TV aerial point. New carpet.

Bedroom Three
2.46m x 4.6m (8'1" x 15'1")

uPVC double glazed windows to the rear elevation. Tv aerial and telephone points. Radiator. New Carpet.

Family Bathroom
1.75m x 1.85m (5'9" x 6'1")

Fitted with a modern three piece suite comprising of a panelled bath with mains shower over, close coupled dual flush WC and pedestal wash hand basin with stainless steel mixer tap. Attractive tiling to splash areas. Radiator.

Second Floor Landing

Airing cupboard currently housing the hot water cylinder. Access to the loft space via the pull down loft hatch. Doors leading to bedrooms one and two.

Bedroom One
4.6m x 3.05m (15'1" x 10'0")

Double glazed windows to the front elevation. Fitted wardrobe with sliding doors. TV aerial and telephone points. Radiator. Door leading to the en suite shower room. New Carpet.

En Suite Shower Room

Fitted with a three piece suite comprising of a single enclosed shower cubicle with mains shower and glass bi fold door, pedestal wash hand basin with stainless steel mixer tap and close coupled dual flush WC. Attractive tiling to splash areas. Extractor fan. Electric shaver point. Radiator.

Bedroom Two
2.46m x 4.6m (8'1" x 15'1")

Double glazed windows to the rear elevation. TV aerial point. Radiator. New Carpet.

Garage & Parking

The garage and parking space are located at the rear of the property accessed via Bolle Road. Gated pedestrian access into the rear garden for ease. There is parking also available at the front of the property but allocated.

Gardens

The open plan front garden has well maintained evergreen shrubs offering privacy from the road. Steps lead to the entrance door and there is gated pedestrian access to the rear garden. The rear garden is a real gem and has been beautifully landscaped with easy maintenance in mind. The garden offers a private and ideal space for entertaining in the summer months.


Mortgage calculator

Calculate Your Stamp Duty
£
Results
Stamp Duty To Pay:
Effective Rate:
Tax Band % Taxable Sum Tax

Newbridge Hill, Louth, LN11

Struggling to find a property? Get in touch and we'll help you find your ideal property.

Interested in viewing this property?
Book a Viewing
Main menu