4 bedroom Detached house For Sale

Folly Hill, Thornton Road, North Owersby, Market Rasen

£475,000 | Available

4 Bedrooms
3 Bathrooms
3 Receptions

Market Rasen

13 Queen Street, 
Market Rasen, 
Lincolnshire, 
LN8 3EH
Standout Features

Property Description

Brand New Detached House - Tailored to Your Lifestyle. Secure Your Dream Home - Personalise the Layout, Fixtures & Finishes! Welcome to an exciting opportunity to purchase a stunning and unique new build home.

Brand New Detached House - Tailored to Your Lifestyle. Secure Your Dream Home - Personalise the Layout, Fixtures & Finishes! Welcome to an exciting opportunity to purchase a stunning and unique new build home.

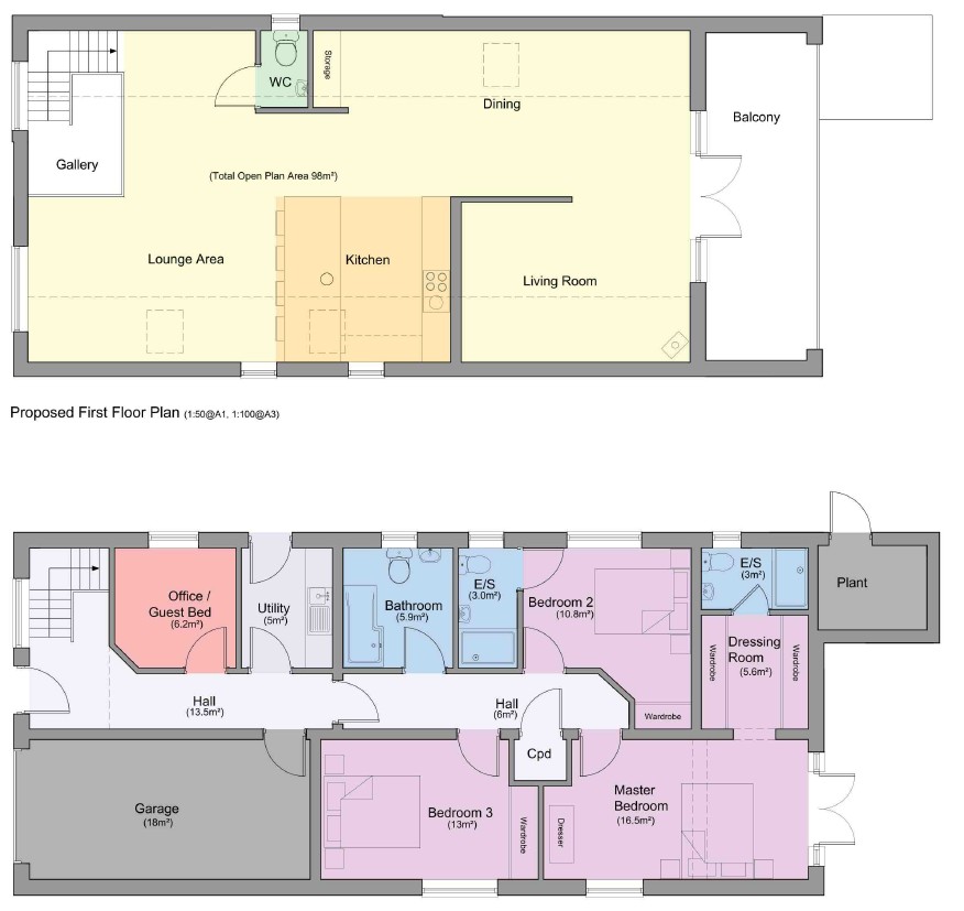
A stunning modern future build, designed with reverse living to maximise light, views,  and  space. On the first floor, a spectacular open-plan living area combines a sleek, fully fitted kitchen with premium appliances, a generous dining area, an entertainment space and  a stylish lounge. A gallery feature  adds architectural  interest,  while doors open onto a private  balcony—perfect for entertaining or relaxing in the sun. The ground floor offers four well-proportioned bedrooms, including a luxurious master  suite with a walk-in  dressing room  and  a contemporary en-suite. Bedroom 2 also  benefits from its own en-suite, while Bedroom 3 is served by a high-quality family bathroom. A versatile office/bedroom 4, utility room,  and  integral garage add  practicality to the home’s stylish design. Every detail  reflects  quality,  from the modern fixtures  and  premium finishes to the energy-efficient construction and thoughtful layout.  Outside, landscaped gardens provide an inviting space to enjoy  year-round. EPC rating: A. Council tax band: X, Tenure: Freehold,

Additional Information
Tenure:
Freehold
Rooms
To Summarise

Open Plan Living,
Fitted Kitchen,
Gallery, Dining, entertainment and lounge areas,
Balcony,
Dressing Room and ensuite to master bedroom,
3-further bedrooms (one with ensuite),
Family bathroom,
Utility room,
Integeral garage

Location

North Owersby, Market Rasen a rural farming village in the civil parish of Owersby on the edge of the breath- taking Lincolnshire Wolds, an area of outstanding natural beauty. The property is adjacent to the Kingerby Beck Meadows Nature Reserve, offering a serene and scenic environment perfect for nature enthusiasts and those seeking tranquility. Local shopping facilities are available nearby, with a post office and general store situated in Osgodby, just a five minute drive away. For larger shopping needs, a range of supermarkets and retail outlets can be found in Market Rasen, approximately four miles away, as well as in Caistor. Medical provision is also well served, with doctors’ surgeries and dental practices close at hand, alongside major NHS hospitals and medical centres within easy reach.

Connectivity

The village boasts excellent connectivity with convenient road links via the A46, A16, and A18, providing easy access to major motorways including the M180, A1(M), and M1. Larger cities such as Lincoln, Hull, Sheffield, Leeds and Manchester are all within easy reach. For international travel, Humberside Airport, East Midlands Airport, and Leeds Bradford Airport are a short drive away. Additionally, direct train services to London are available from Lincoln.

Education

The property is located within the catchment area for the prestigious Caistor Grammar School, Osgodby
Primary School and the Caistor Yarborough Academy ensuring top-quality education opportunities for families. Further and higher education needs are served by Lincoln College of Further Education and Lincoln University, whilst the Russell Group Universitas of Sheffield, Leeds and Manchester are within easy commuting distance.

Ground Floor

Entrance Hall, Bedroom 1, Ensuite 1, Bedroom 2, Ensuite 2, Bedroom 3, Bedroom 4 / Office, Bathroom, WC / Cloakroom, Utility Room

First Floor

Open Plan Lounge, Kitchen Dining Room, Living Room

Outside

Gardens, Garage & Driveway

Agents Notes

These particulars are for guidance only. Lovelle Estate Agency, their clients and any joint agents give notice that:- They have no authority to give or make representation/warranties regarding the property, or comment on the SERVICES, TENURE and RIGHT OF WAY of any property.
These particulars do not form part of any contract and must not be relied upon as statements or representation of fact. All measurements/areas are approximate. The particulars including photographs and plans are for guidance only and are not necessarily comprehensive.

Next Steps

Successful buyers will be required to complete anti-money laundering checks. Our partner, Hipla, will carry out the initial checks on our behalf. The current non-refundable cost is £24 inc. VAT per person. You’ll need to pay this and complete all checks before we can issue a memorandum of sale. The cost includes obtaining relevant data and any manual checks and monitoring that might be required.


Mortgage calculator

Calculate Your Stamp Duty
£
Results
Stamp Duty To Pay:
Effective Rate:
Tax Band % Taxable Sum Tax

Folly Hill, Thornton Road, North Owersby, Market Rasen

Struggling to find a property? Get in touch and we'll help you find your ideal property.

Interested in viewing this property?
Book a Viewing
Main menu