4 bedroom Detached house Sold STC

Trent Approach, Marton, DN21

£295,000 | SSTC

4 Bedrooms
2 Bathrooms
2 Receptions

Gainsborough

Unit 5B, 
Tillbridge Centre, 
DN21 1FT
Standout Features

Property Description

A detached four-bedroom, two-bathroom house in Marton, Lincolnshire, featuring two reception rooms, oil fired heating, a private generous rear garden, driveway parking, double garage, field views and a freehold tenure.

This well-presented detached house offers a comfortable and spacious living environment ideal for family life. Providing four good-sized bedrooms and two bathrooms, the property ensures ample accommodation for a growing household. The residence comprises two generous public rooms designed for flexible use, suitable for both everyday living and entertaining guests. A feature of the property is the private garden to the rear, offering an expanse of outdoor space bordered by field views which create a tranquil setting. The garden is particularly well-suited for relaxation, recreation, or gardening enthusiasts.

 

The property benefits from a double garage and a private driveway, providing extensive off-road parking for multiple vehicles. The detached nature of the home ensures privacy and a sense of autonomy, enhanced by its situation within a village location. Oil fired heating forms part of the property's specification. Offered on a freehold tenure, the property is available with no onward chain, simplifying and expediting the transaction process for prospective purchasers.

 

Double glazing and a generously sized rear garden further enhance the quality of life available to residents. The property is suitable for those seeking space, convenience, and a peaceful environment.

 

Local area

 

Situated in Marton, Lincolnshire, the property benefits from a rural village setting combining convenience with a semi-rural lifestyle. The local area is characterised by open field views and a sense of community, while access to nearby towns and amenities ensures practicality for daily life. Marton is perched within a sought-after region of Lincolnshire, appreciated for its scenic countryside and accessibility. EPC rating: C. Council tax band: D, Tenure: Freehold,

Additional Information
Tenure:
Freehold
Council Tax Band:
D
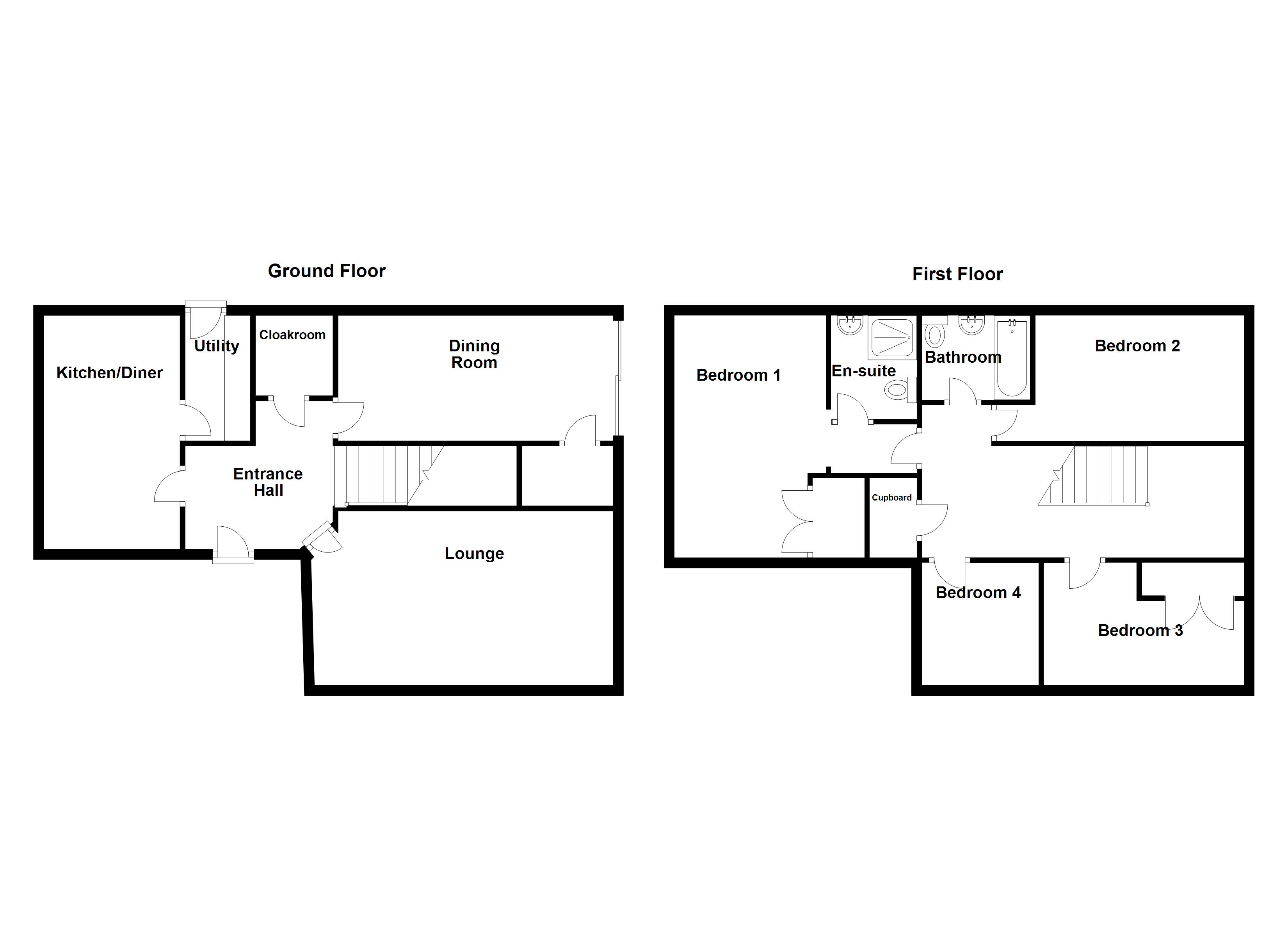
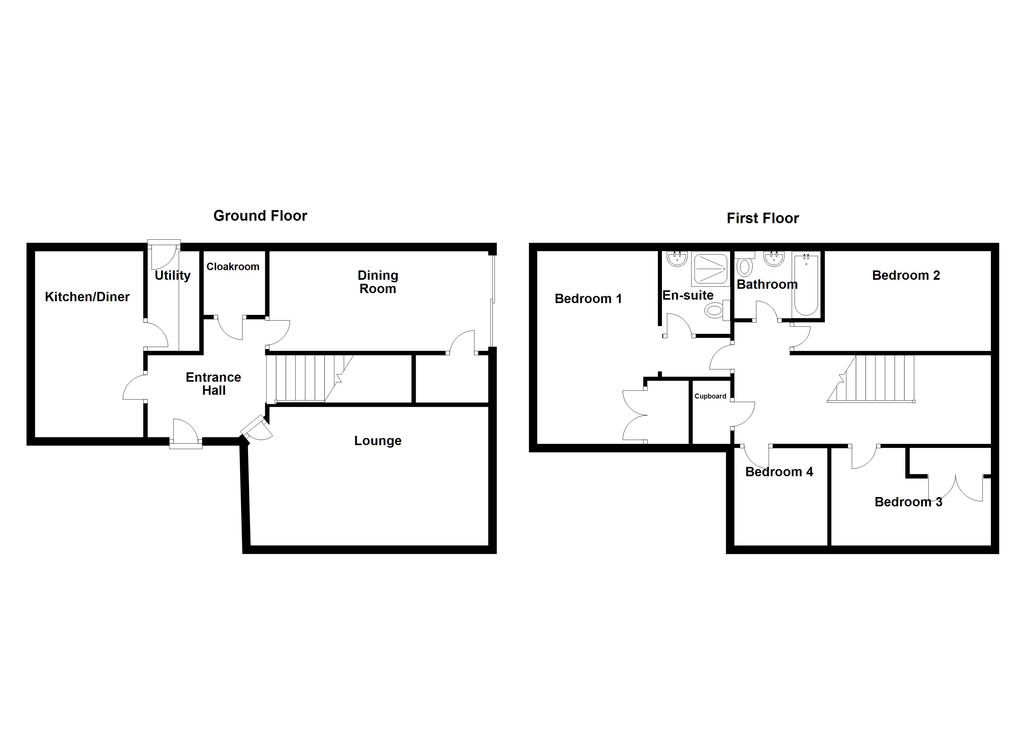
Rooms
LOUNGE
4.12m x 4.93m (13'6" x 16'2")

Fitted carpet, radiator, windows to front and rear aspect.

DINING ROOM
3.69m x 2.73m (12'1" x 8'11")

Tiled flooring, under-stairs storage and patio doors to the rear garden.

KITCHEN
4.19m x 3.02m (13'9" x 9'11")

Fitted kitchen comprising of; wall and base units, stainless steel sink with drainer and mixer tap, space for fridge freezer, windows to front and rear aspect and door to utility room.

UTILITY
1.84m x 1.98m (6'0" x 6'6")

Fitted base units, space for white goods and a door to the rear garden.

CLOAKROOM
1.26m x 1.55m (4'2" x 5'1")

WC, hand-wash basin, and window to the side aspect.

FIRST FLOOR ACCOMMODATION
BEDROOM ONE
4.22m x 3.17m (13'10" x 10'5")

Fitted carpet, radiator, fitted wardrobes, window to front aspect and door to en-suite.

EN SUITE
1.7m x 1.95m (5'7" x 6'5")

Fitted three-piece suite comprising of; shower cubicle, hand wash basin, WC, part tiled walls and window to rear aspect.

BEDROOM TWO
2.81m x 2.56m (9'3" x 8'5")

Fitted carpet, radiator and window to the rear aspect.

BEDROOM THREE
3.16m x 2.81m (10'4" x 9'3")

Fitted carpet, radiator and window to the rear aspect.

BEDROOM FOUR
3.16m x 2.96m (10'4" x 9'9")

Fitted carpet, radiator and window to the front aspect.

BATHROOM
1.72m x 2.03m (5'8" x 6'8")

Fitted three-piece suite comprising of; bath, hand wash basin, WC, part tiled walls and window to rear aspect.

EXTERNAL

To the front of the property is off-road parking for multiple vehicles, access to the rear garden and a path leading to the front door.

To the rear of the property is a mainly laid-to-lawn garden with a patio area, and is enclosed by fencing.

TENURE

The tenure of this property is Freehold.

SERVICES

All mains services are available or connected subject to the statutory regulations. We have not tested any heating systems, fixtures, appliances or services.

LOCAL AUTHORITY

This property falls within the geographical area of West Lindsey Council - 01427 676676.
https//www.west-lindsey.gov.uk/

VIEWING

By appointment with the Sole Agent Lovelle Estate Agency, telephone 01427 614018.
We recommend prior to making an appointment to view, prospective purchasers discuss any particular points likely to affect their interest in the property with one of our property consultants who have seen the property in order that you do not make a wasted journey.

HOW TO MAKE AN OFFER

If you are interested in this property then it is important that you contact us at your earliest convenience. We will require certain pieces of personal information from you in order to provide a professional service to you and our client. The personal information you have provided to us may be shared with our client, the seller, but it will not be shared with any other third parties without your consent other than stated reasons detailed within our privacy policy. More information on how we hold and process your data is available on our website https://www.lovelle.co.uk/privacy-policy/ and you can opt out at any time by simply contacting us.
For any offer you wish to make we will need to establish certain details before negotiation can take place. This is so that our vendor can make an informed choice when negotiating and accepting your offer. You will be asked to provide formal I.D. and address verification, as required under new Money Laundering Legislation.

.

You might also have one or two questions for us, such as which solicitor to choose, or which mortgage lender has the best offers available for me. We have a one stop shop to satisfy all of these needs so please ask.

MORTGAGE AND SOLICITORS

Lovelle Estate Agency and our partners provide a range of services to buyers, although you are free to use an alternative provider. If you require a solicitor to handle your purchase and/or sale, we can refer you to one of the panel solicitors we use. We may receive a fee if you use their services. If you need help arranging finance, we can refer you to the Mortgage Advice Bureau who are in-house. We may receive a fee if you use their services.

ENERGY PERFORMANCE CERTIFICATE

A copy of the full Energy Performance Certificate for this property is available upon request unless exempt. Advisory Notes - Please be advised if you are considering purchasing a property for Buy To Let purposes, from 1st April 2018 without an EPC rated E or above it will not be possible to issue a new tenancy, or renew an existing tenancy agreement.

AGENTS NOTES

These particulars are for guidance only. Lovelle Estate Agency, their clients and any joint agents give notice that:
They have no authority to give or make representation/warranties regarding the property, or comment on the SERVICES, TENURE and RIGHT OF WAY of any property. These particulars do not form part of any contract and must not be relied upon as statements or representation of fact.
All measurements/areas are approximate. The particulars including photographs and plans are for guidance only and are not necessarily comprehensive.

ANTI MONEY LAUNDERING

In accordance with HM Revenue and Customs (HMRC) regulations, all estate agents in the UK are legally required to conduct Anti-Money Laundering (AML) checks for every property transaction. This is a mandatory step for both buyers and sellers, and your successful completion of these checks is essential before any property transaction can proceed.

Our agency utilises Moverly to carry out these necessary AML checks. Please be aware that a non-refundable fee will be charged for each individual AML check conducted.

MATERIAL INFORMATION

Verified Material Information
Council Tax band: D
Tenure: Freehold
Property type: House
Property construction: Standard construction
Energy Performance rating: C
Electricity supply: Mains electricity
Solar Panels: No
Other electricity sources: No
Water supply: Mains water supply
Sewerage: Mains
Heating: Oil-powered central heating is installed.
Heating features: Double glazing
Broadband: FTTC (Fibre to the Cabinet)
Mobile coverage: O2 - Good, Vodafone - Good, Three - Good, EE - Good
Parking: Garage and Driveway
Building safety issues: No
Restrictions - Listed Building: No
Restrictions - Conservation Area: No

MATERIAL INFORMATION

Restrictions - Tree Preservation Orders: None
Public right of way: No
Long-term area flood risk: Yes
Historical flooding: No
Flood defences: No
Coastal erosion risk: No
Planning permission issues: No
Accessibility and adaptations: None
Coal mining area: No
Non-coal mining area: No
All information is provided without warranty. Contains HM Land Registry data © Crown copyright and database right 2021. This data is licensed under the Open Government Licence v3.0.
The information contained is intended to help you decide whether the property is suitable for you. You should verify any answers which are important to you with your property lawyer or surveyor or ask for quotes from the appropriate trade experts: builder, plumber, electrician, damp, and timber expert.


Mortgage calculator

Calculate Your Stamp Duty
£
Results
Stamp Duty To Pay:
Effective Rate:
Tax Band % Taxable Sum Tax

Trent Approach, Marton, DN21

Struggling to find a property? Get in touch and we'll help you find your ideal property.

Interested in viewing this property?
Book a Viewing
Main menu