Standout Features
Total Floor Area:- 276 Square Metres
Granted Planning Permission For a Detached Home
Fantastic Custom or Self-Build Opportunity
Substantial Plot With Mains Services Available
Designed by Kelly & Macpherson Architects (Grand Designs)
Adjoining The Grounds of Worlaby Hall (Historic Worlaby Estate)
Sought After Village Location
Stunning Panoramic Views Over Parkland
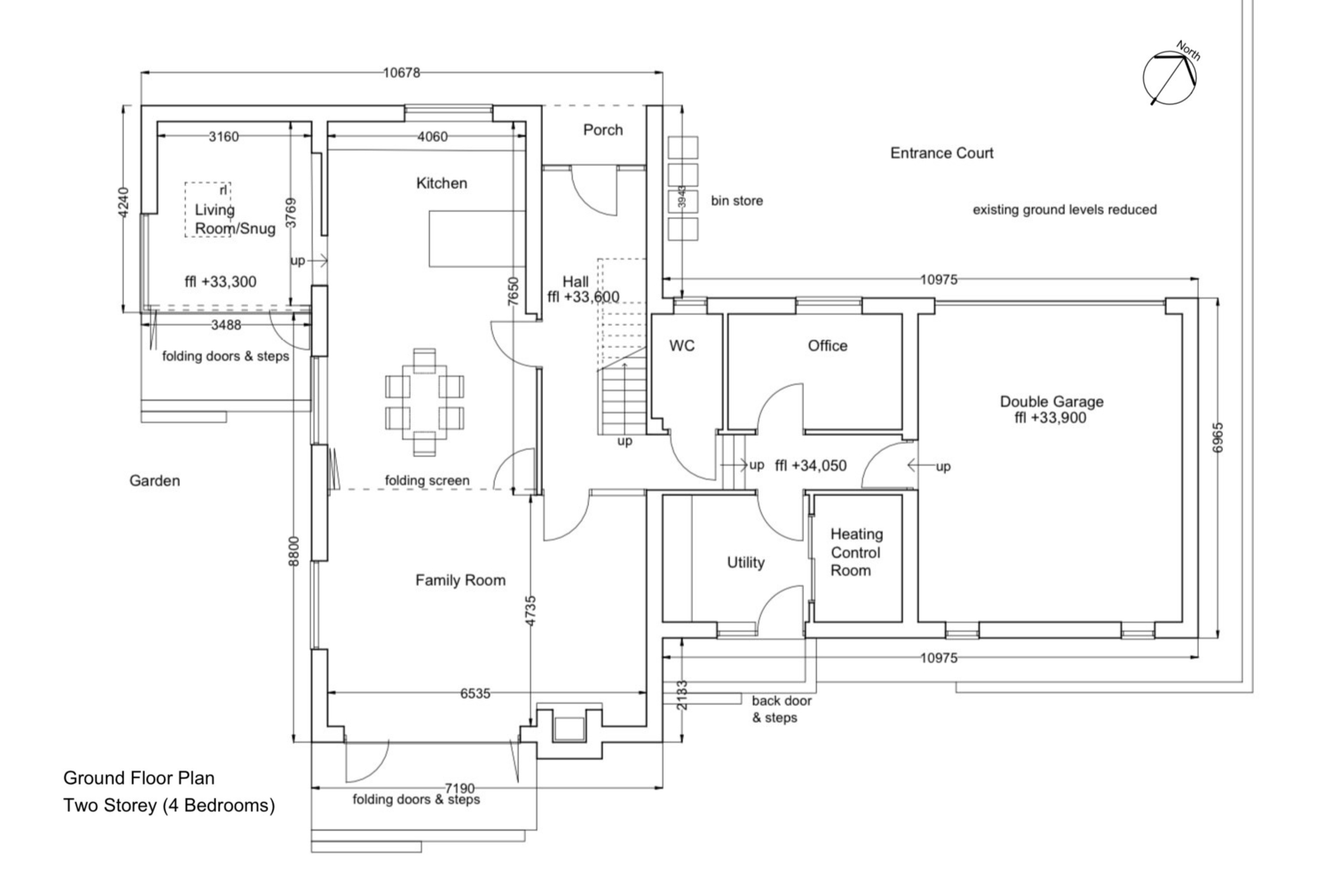
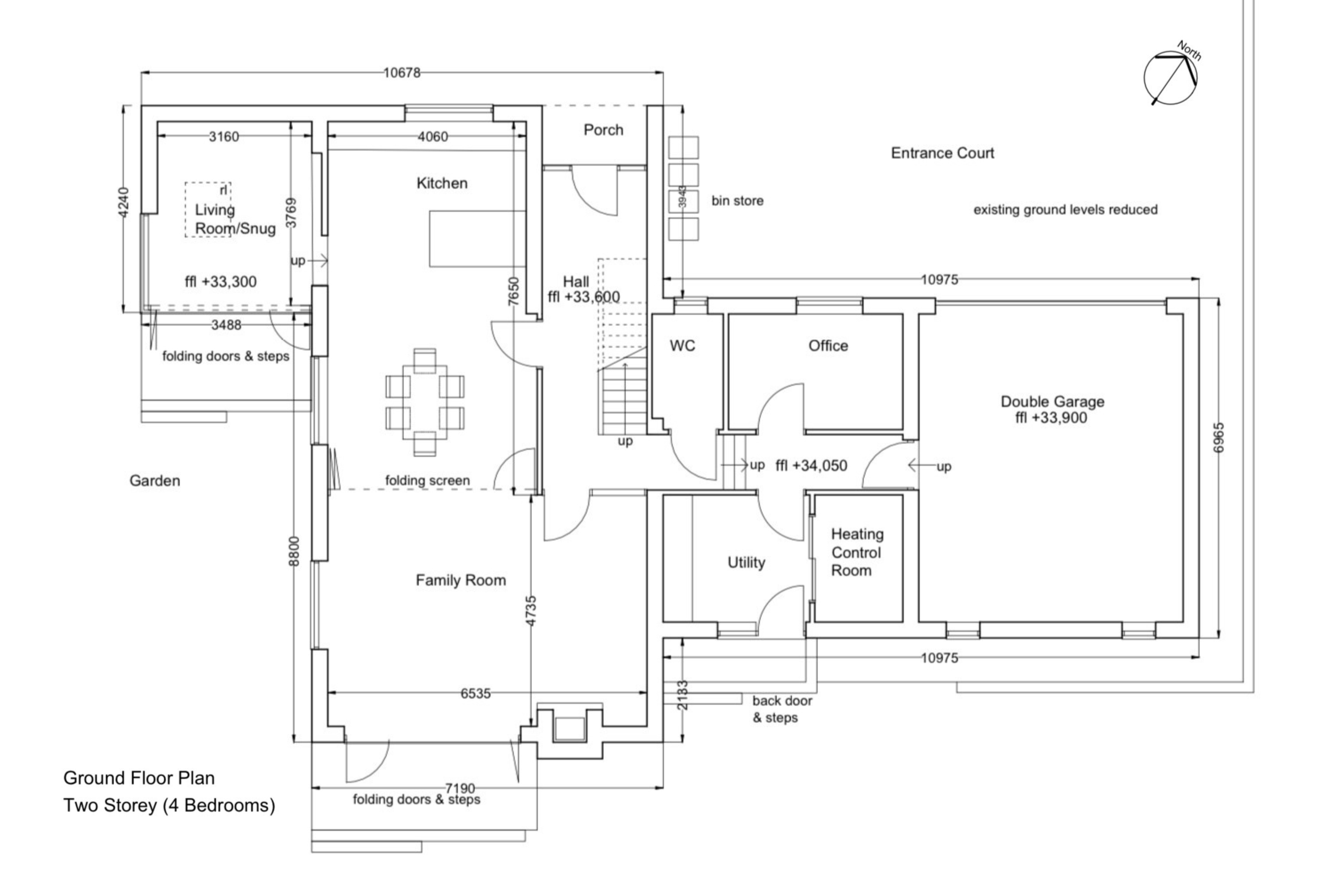
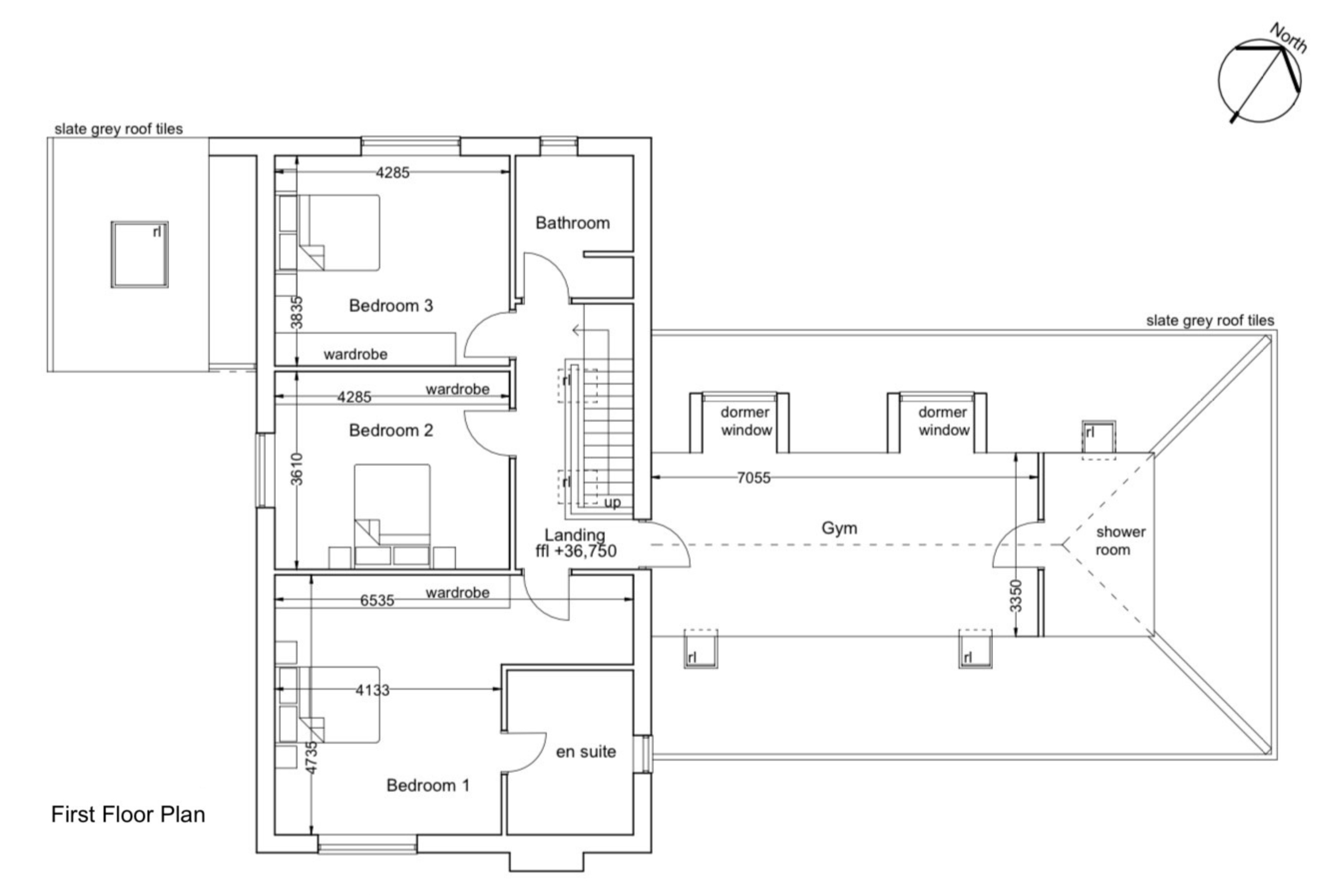
Property Description
Full planning permission granted - Reference No. PA/2025/974 (local planning authority North Lincolnshire Council).
This exceptional plot of 0.4 acres presents a remarkable opportunity to build your dream home.
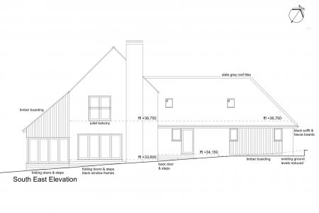
Belasyse House is architect designed with a subtle mix of traditional red brick construction and contemporary features of timber cladding and black aluminium windows. Details of the 4 bedroom 3 bathroom design can easily be altered to your own personal design (subject to planning permission).
You can bring to life your vision of a substantial family residence, featuring generous open plan living and entertaining areas with outstanding views of the surrounding parkland. The house is set back to the rear of the plot with a sweeping entrance driveway and mature trees. Adding to the picturesque setting and providing privacy from the road.
Further land will be available to purchase adjoining the rear of the plot. Including a 1.5 acre grass paddock with stables, 4.5 acres of woodland and 6 acres of parkland.
HISTORY: Royalist commander Lord John Belasyse, born in Yorkshire in 1615, was made Baron of Worlaby by King Charles I in 1644 after holding Newark against Cromwells army. He married in 1636 and around this period built the original Worlaby Hall and later the Old Almshouse in 1660. When Belasyse died in 1689, his title was passed to his grandson and then when he died the title became extinct, so there were only ever two Barons of Worlaby. In 1860 the whole of Worlaby estate was sold. It was the first time since the 1600s that it had passed out of the Belasyse family.
EPC rating: B. Council tax band: X, Tenure: Freehold, Planning permissions: PA/2025/974 Mobile signal information: Standard- 2Mbps (download speed), 0.3 Mbps (upload speed),
Superfast- 48 Mbps (download speed), 8 Mbps (upload speed).
Rooms
LOCATION
Located on The Hill in Worlaby, one of the areas most desirable and historic villages. The Hill which is regarded as the best location in the village has several listed buildings and monuments including the Grade II* listed Almshouse built around 1660. Worlaby has the highly regarded Academy primary school, village hall, picturesque woodland footpaths and an active local community. The village also has many peaceful horse riding and cycling routes close by.
Worlaby is a small, rural village and civil parish in North Lincolnshire, England. It's situated about 6 miles southwest of Barton-upon-Humber and 5 miles northeast of Brigg, on the B1204 road and east of the River Ancholme. Easy access to the M180, Humberside Airport, Humber Bridge and mainline rail services at Barnetby. The nearby market town of Brigg has a selection of shops, services and schools.
BROADBAND TYPE
Standard- 2Mbps (download speed), 0.3 Mbps (upload speed),
Superfast- 48 Mbps (download speed), 8 Mbps (upload speed).
MOBILE COVERAGE
Outdoors - Great,
Indoors - Good,
Available - O2, Vodafone, Three, EE.
*
We are required by law to conduct anti-money laundering checks on all those selling or buying a property. Whilst we retain responsibility for ensuring checks and any ongoing monitoring are carried out correctly, the initial checks are carried out on our behalf by Landmark who will contact you once you have had an offer accepted on a property you wish to buy. The cost of these checks for buyers is £20.00 (incl. VAT) per client, which covers the cost of obtaining relevant data and any manual checks and monitoring which is required. This fee will need to be paid by you in advance of us issuing a memorandum of sale, directly to Landmark, and is non-refundable. We will receive some of the fee taken by Landmark to compensate for its role in the provision of these checks.
Read more
Close
Mortgage calculator
All fields must be numbers
Calculate Your Stamp Duty
Results
Stamp Duty To Pay:
Effective Rate:
| Tax Band |
% |
Taxable Sum |
Tax |
The Hill, Worlaby, North Lincolnshire, DN20
Struggling to find a property? Get in touch and we'll help you find your ideal property.