4 bedroom Terraced House For Sale

Newland Street West, Lincoln, LN1

£212,000 | Available

4 Bedrooms
2 Bathrooms
1 Receptions

Lincoln Sales

27-28 Silver Street, 
Lincoln, 
Lincolnshire, 
LN2 1EW
Standout Features

Property Description

Fully let 4-bed HMO producing £20,240 pa, already let to students for 2025/26. Modern communal spaces plus 4 furnished bedrooms with good facilities.
Close to Lincoln Uni and city centre with 2 parking spaces to the front. EPC C for efficiency and future-proof rental investment. *PERFECT INVESTMENT*

An excellent investment opportunity, this fully let 4-bedroom HMO is generating a gross annual income of £20,240 and is already let to students for the academic year 2025/26, providing buyers with secure and immediate rental income.

The property is well presented throughout and thoughtfully arranged to meet the needs of multiple occupants. The ground floor features a welcoming entrance hall, a bright and spacious communal living room, a modern fitted kitchen with ample storage and appliances, a shower room, and one double bedroom. To the first floor are three further well-proportioned bedrooms and a bathroom with three-piece suite.

Each bedroom is furnished with a bed, wardrobe, desk, and chair, making the property ideal for the student market. The property also benefits from gas central heating, uPVC double glazing, two allocated parking spaces to the front, and an EPC rating of C, offering energy efficiency and future-proofing should the government move forward with increasing minimum EPC standards for rental properties.

Situated close to Lincoln city centre, the university, and excellent transport links, this HMO represents a secure and attractive investment with guaranteed income for the forthcoming academic year. EPC rating: C. Council tax band: B, Tenure: Freehold,

Additional Information
Tenure:
Freehold
Council Tax Band:
B
Rooms
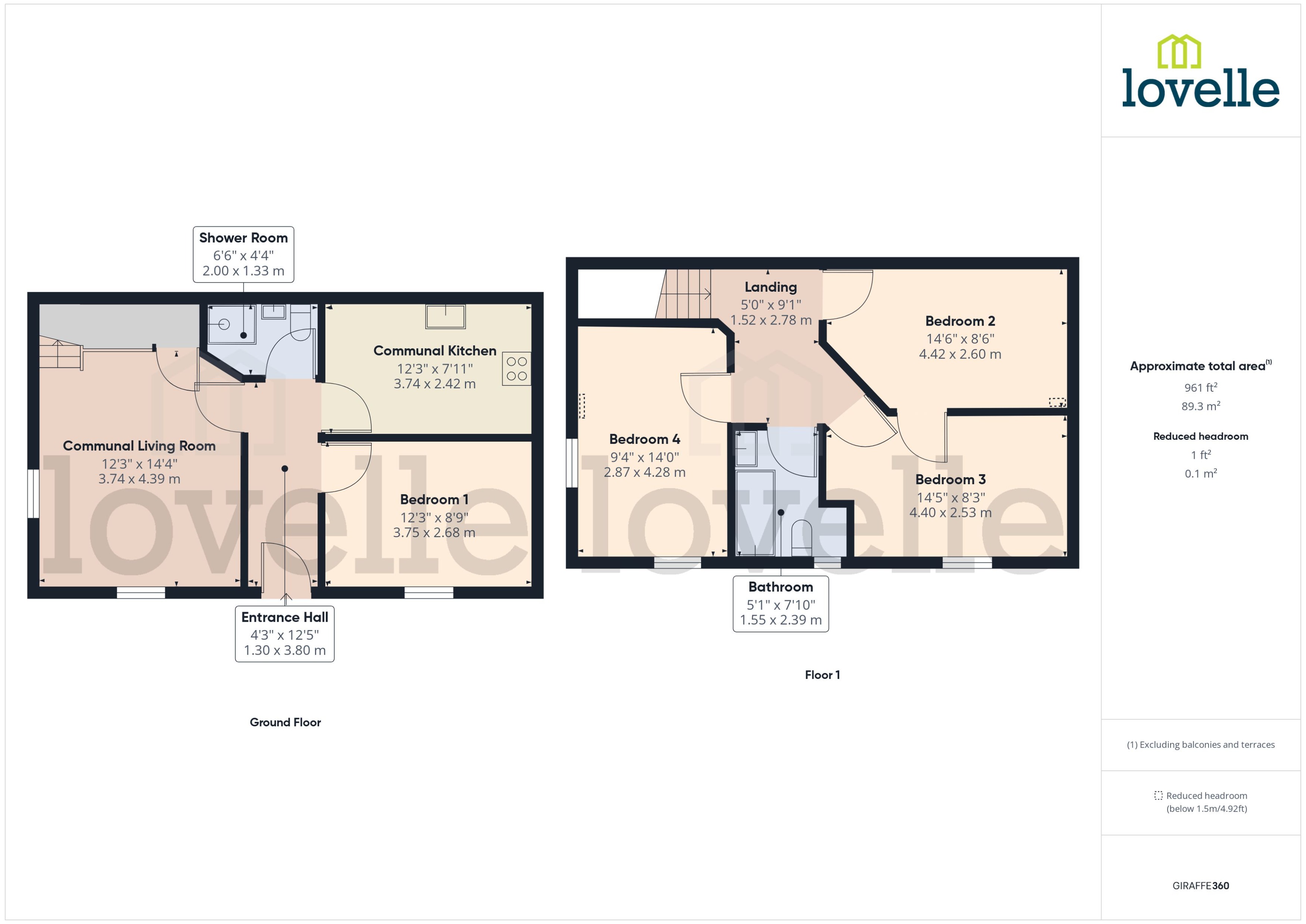
Entrance Hall
3.8m x 1.3m (12'6" x 4'3")

The property opens into a practical entrance hall, complete with coat hooks and shoe storage, perfect for everyday use by busy tenants. This organised space helps maintain a tidy, professional feel on arrival, appealing to both students and young professionals.

Communal Living Room
4.39m x 3.74m (14'5" x 12'3")

This inviting communal living room is a real selling point, offering a comfortable space for tenants to relax and socialise. With modern sofas, dining area, and wall-mounted TV, it creates the ideal hub for both students and professionals.

Communal Kitchen
3.74m x 2.42m (12'3" x 7'11")

A modern, well-equipped kitchen designed with shared living in mind, featuring sleek gloss units, generous worktop space, and tiled flooring for easy upkeep. Complete with a cooker, dishwasher, washing machine, and multiple small appliances, this space is fully set up to handle the needs of busy student or professional tenants. Ample cupboard storage ensures each occupant has their own dedicated space, making this a practical and appealing hub of the home.

Ground Floor Bedroom 1
3.75m x 2.68m (12'4" x 8'10")

Positioned on the ground floor, this bright and practical bedroom is thoughtfully furnished for student or professional living. It includes a comfortable bed, a study desk with chair, and ample storage provided by a freestanding mirrored wardrobe and chest of drawers. Neutral décor and a window to the front aspect create a light, inviting space ideal for study or relaxation.

Ground Floor Shower Room
2m x 1.33m (6'7" x 4'4")

The ground floor shower room is smartly tiled and designed for ease of use, featuring a corner shower enclosure with glass doors, pedestal wash basin, and WC. Bright and functional, it’s a convenient facility for housemates and guests alike, reducing morning queues and enhancing shared living practicality.

Landing
2.78m x 1.52m (9'1" x 5'0")

The landing provides access to three first floor bedrooms and the bathroom. Neutrally decorated and carpeted, it is equipped with a radiator and benefits from a practical layout that makes excellent use of the available space.

Bedroom 2
4.42m x 2.6m (14'6" x 8'6")

Positioned on the first floor, Bedroom Two is a bright and welcoming double, enhanced by a skylight that fills the room with natural light. The space comes fully furnished with a bed, desk, chair, and a chest of drawers, complemented by a fitted mirrored wardrobe that maximises storage while reflecting light to create an airy feel.

Bedroom 3
4.4m x 2.53m (14'5" x 8'4")

A generously sized double bedroom, enhanced by a large window that brings in plenty of natural light. The room is tastefully furnished with a double bed, mirrored wardrobe, chest of drawers, and a dedicated study area with desk and chair, making it perfectly suited for students or professionals seeking both comfort and practicality.

Bedroom 4
4.28m x 2.87m (14'1" x 9'5")

A generously proportioned double room, enhanced by dual-aspect windows that create a bright and airy environment. The room is furnished with a bed, mirrored wardrobe, chest of drawers, desk, and chair, making it ready for immediate occupation.

Bathroom
2.39m x 1.55m (7'10" x 5'1")

The bathroom is fitted with a three-piece suite comprising a panelled bath with shower over and glass screen, hand basin, and WC. Fully tiled walls and flooring ensure practicality and easy upkeep, while a frosted window provides natural light and privacy, a functional and low-maintenance space ideal for shared living.

Outside
Parking

The property benefits from two off-street parking spaces to the side, a valuable feature for both students and professionals seeking secure and convenient parking close to the city centre.

Agents Note

These particulars are for guidance only. Lovelle Estate Agency, their clients and any joint agents give notice that:-

They have no authority to give or make representation/warranties regarding the property, or comment on the SERVICES, TENURE and RIGHT OF WAY of any property.

These particulars do not form part of any contract and must not be relied upon as statements or representation of fact.

All measurements/areas are approximate. The particulars including photographs and plans are for guidance only and are not necessarily comprehensive.


Mortgage calculator

Calculate Your Stamp Duty
£
Results
Stamp Duty To Pay:
Effective Rate:
Tax Band % Taxable Sum Tax

Newland Street West, Lincoln, LN1

Struggling to find a property? Get in touch and we'll help you find your ideal property.

Interested in viewing this property?
Book a Viewing
Main menu