5 bedroom Detached house For Sale

Calceby Way, Swaby, LN13

£635,000 | Available

5 Bedrooms
2 Bathrooms
4 Receptions

Grimsby Sales

Hampton House, 
Church Lane, 
Grimsby, 
DN31 1JR
Standout Features

Property Description

Spacious five bedroom detached home with several large outbuildings situated in the popular Lincolnshire Wolds. The property benefits from oil fired central heating and uPVC double glazed windows throughout and briefly consists of 5 bedrooms, 4 reception rooms, family bathroom, cloakroom WC and en-suite shower room. This property is been offered with No Onward Chain.

Situated in the Lincolnshire Wolds is this five bedroom home set on 1.5 acres of private land with surrounding open fields, this property provides ample space for outdoor activated, gardening, or simply enjoying natures beauty. The property itself features spacious, light filled rooms with a neutral finish designed to accommodate both family living and entertaining. In addition to the main residence the property includes several large outbuildings ideal for storage, workshops or even the potential of a home run business. With its combination of comfortable living space, expansive grounds and versatile outbuildings the home offers a perfect balance of functionality and charm.  EPC rating: E. Council tax band: E, Tenure: Freehold,

Additional Information
Tenure:
Freehold
Council Tax Band:
E
Rooms
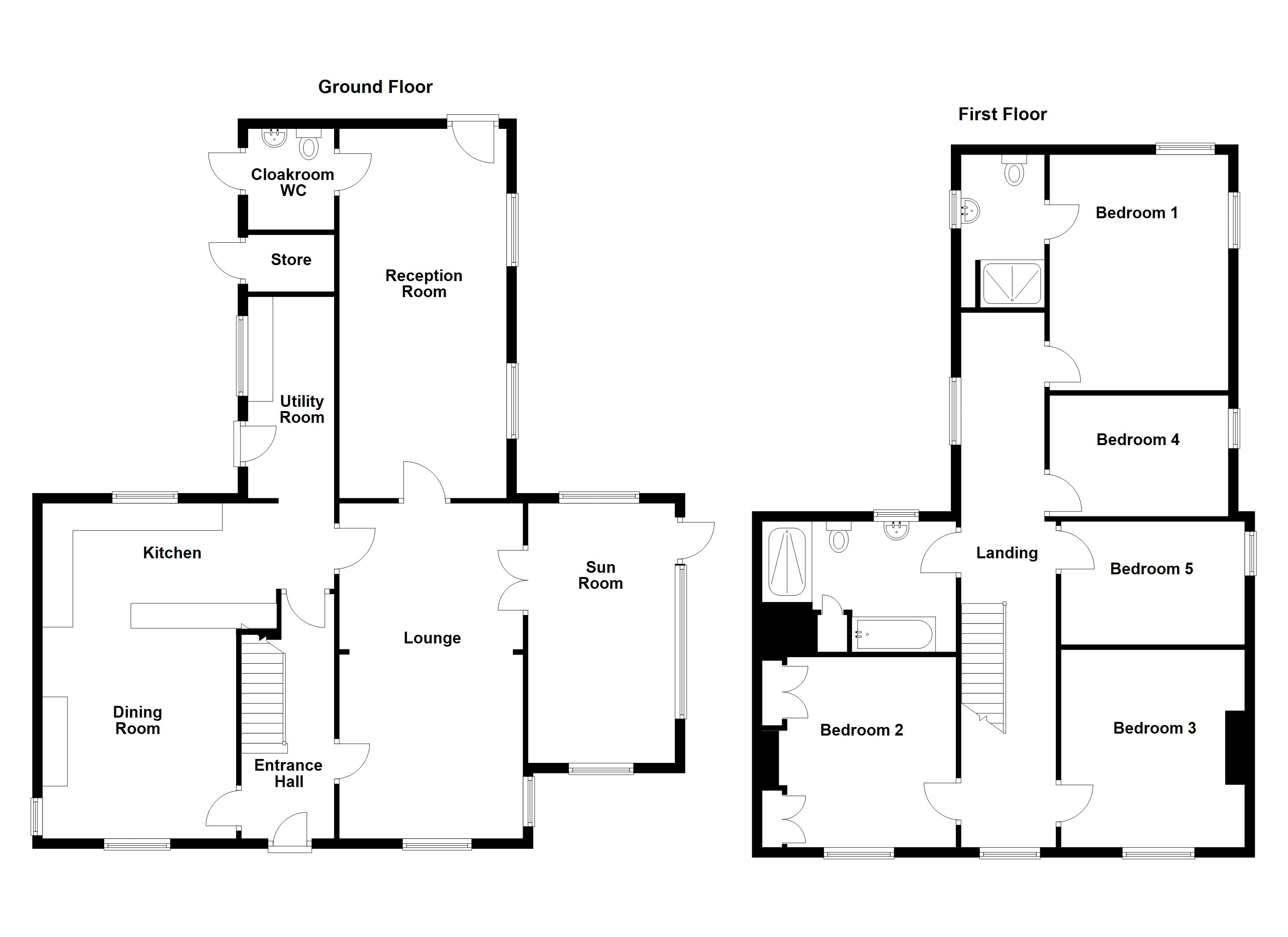
Entrance Hall
1.83m x 4.9m (6'0" x 16'1")

UPVC entrance door to the front elevation. Spindle and balustrade staircase rising to the first floor accommodation. Dado rail to walls. Radiator. Doors leading to the lounge, dining room/family room and kitchen area.

Dining Room / Family Room
3.99m x 4.06m (13'1" x 13'4")

Dual aspect uPVC double glazed windows to the front and side elevations. Coving to the ceiling. TV aerial and telephone points. Inglenook fireplace incorporating a cast iron log burner sat on a tiled hearth. Radiator. Open through to the kitchen area.

Kitchen
2.62m x 6.02m (8'7" x 19'9")

UPVC double glazed window to the rear elevation. The kitchen is made up of a range of shaker style wall and base units with complementary worksurfaces continuing into upstands over incorporating a one and a half bowl sink unit with drainer and stainless steel mixer tap. Built in double oven and four ring electric hob. Plumbing for dishwasher. Integrated, under counter fridge and separate freezer. Leading onto the utility room.

Utility Room
1.73m x 4.04m (5'8" x 13'3")

UPVC entrance door and double glazed window to the side elevation. Fitted base units with single bowl sink unit and drainer. Plumbing for washing machine. Radiator.

Lounge
3.66m x 6.55m (12'0" x 21'6")

Dual aspect uPVC double glazed windows to the front and side elevations. Coving to ceiling and dado rail to wall. the focal point of the lounge is the feature fire place made up of a marble surround incorporating a open grate fire sat on a tiled hearth. Tv aerial point and radiators. Doors leading to the kitchen area and rear reception room with double doors opening through to the sun room.

Reception Room
3.35m x 7.42m (11'0" x 24'4")

This spacious reception room benefits from two uPVC double glazed windows to the side elevation with entrance door to the rear and would lend its self to a ground floor bedroom if required. Wall mounted electric consumer unit. Radiator. Door leading to the cloakroom WC.

Cloakroom WC
2.06m x 1.73m (6'9" x 5'8")

The cloakroom is currently made up of a two piece suite comprising of a close coupled WC and wall mounted wash hand basin with separate entrance door to the side elevation.

Sun Room
2.95m x 5.28m (9'8" x 17'4")

Boasting triple aspect uPVC double glazed windows to the front, side and rear elevations as well as a uPVC entrance door leading out to the side garden. Situated in the corner of the room is a cast iron log burner sat on a brick hearth. Access to lot space via loft hatch. TV aerial point and radiator.

Landing

The bright and airy landing benefits from two uPVC double glazed windows, one to the front elevation and another to the side. Radiator. Doors leading to all bedrooms and the family bathroom.

Bedroom One
3.4m x 4.72m (11'2" x 15'6")

Dual aspect uPVC double glazed windows to the side and rear elevations. Tv aerial. Radiator. Door leading to the en-suite shower room.

En-Suite Shower Room
3.05m x 1.68m (10'0" x 5'6")

UPVC double glazed window to the side elevation. Fitted with a three piece suite comprising of a double shower cubicle with electric Triton shower over and wall tiles, close coupled WC and pedestal wash hand basin with stainless steel mixer tap. Radiator.

Bedroom Two
3.94m x 3.63m (12'11" x 11'11")

UPVC double glazed window to the front elevation. Coving to the ceiling. Two fitted double wardrobes to either side of the chimney breast with additional storage over head and shelving to the chimney breast itself. Radiator.

Bedroom Three
3.96m x 3.71m (13'0" x 12'2")

UPVC double glazed window to the front elevation. Coving to the ceiling. Radiator.

Bedroom Four
2.54m x 3.4m (8'4" x 11'2")

UPVC double glazed window to the side elevation. TV aerial. Access to the loft space via the loft hatch. Radiator.

Bedroom Five
3.66m x 2.46m (12'0" x 8'1")

UPVC double glazed window to the side elevation. TV aerial. Access to more loft space via the loft hatch. Radiator.

Family Bathroom
2.44m x 4.04m (8'0" x 13'3")

Dual aspect uPVC double glazed windows to the side and rear elevations. Fitted with a four piece suite comprising of a panelled bath with stainless steel mixer tap and handheld shower attachment, double shower cubicle with electric Triton shower and tiled walls, close coupled WC and pedestal wash hand basin with stainless steel mixer tap. Wood cladding to dado rail. Handy airing cupboard currently housing the hot water cylinder. Radiator.

Outside

To the front of the property is a lawned garden area with gravelled footpath leading to the front entrance door. The perimeters of this garden area are made up of a combination of dwarf brick walls and wrought iron fencing with a mature hedge to the side perimeter. External lighting.

The driveway leads down the side of the property through a five bar timber gate and continues all the way to the rear garden providing vehicular access to the outbuildings if required.

Directly to the rear of the property is a sheltered seating area providing covered access to the utility room, store room and the cloakroom WC.

A little further on is a large timber gazebo sat on a timber decked area with a corrugated metal roof.

Gardens

The property sits on a plot of approximately one and a half acres with a formal garden area to the side of the property which can be accessed from the sun room or via the timber pedestrian gate at the rear of the property. The side garden is laid to lawn with a elevated patio area to the side of the sun room. High level trees and shrubs make up the perimeters.

Towards the rear of the plot is a large lawned area perfect for those looking to start up a small holding or wanting to divide this area into paddock space.

There are several sizable outbuildings scattered throughout the plot as follows :

Timber Garage
11.76m x 4.44m (38'7" x 14'7")

The timber garage can be accessed via either the up and over garage door from the driveway or through one of the two personal doors to the side. Lighting and several power points. The garage currently houses the oil storage tank. There is also an attached boiler shed housing the oil fired central heating boiler and a log store area.

Tool Shed / Workshop
7.24m x 4.22m (23'9" x 13'10")

Handy tool shed / workshop benefitting from light and power accessed via the personal timber door.

Large Workshop
5.36m x 26.82m (17'7" x 88'0")

Large workshop with three phase electrics which is split into two workshop areas. The building is accessed via sliding double doors and benefits from light, power and a wash hand basin. There is also an additional store area with separate access via a personal door.

Two Storey Barn
33.53m x 12.19m (110'0" x 40'0")

The two storey barn is of block and timber construction and also benefits from three phase electrics, light and power throughout. The spacious barn is split into separate areas consisting of a ground floor with windows to both side elevations and accessed via the an electric roller door to the rear of the barn or a set of double doors to the side and a personal door.

There is a large first floor mezzanine area with additional storage which can be accessed via the external staircase to the side of the barn and through the personal door.

Chicken Shed
5.11m x 12.32m (16'9" x 40'5")

The chicken shed is of timber construction and benefits from light, power and a water tap. And can be accessed via a personal door. This leads through to another storage area which has its own accessed from the outside via another personal door.

Generator Room
4.22m x 3m (13'10" x 9'10")

Four windows, accessed via a personal door. Currently housing a Lister diesel generator. Light and power points.

Tenure

The tenure of this property is Freehold.

Services

All mains services are available or connected subject to the statutory regulations. We have not tested any heating systems, fixtures, appliances or services. Please note the property is on oil fired central heating and private drainage in the form of a septic tank,

Local Authority

This property falls within the geographical area of East Lindsey Council - 01507 601111. With a council tax band of E.

https//www.e-lindsey.gov.uk/

Viewings

By appointment with the Sole Agent Lovelle Estate Agency, telephone 01507 603366. We recommend prior to making an appointment to view, prospective purchasers discuss any particular points likely to affect their interest in the property with one of our property consultants who have seen the property in order that you do not make a wasted journey.

Mortgages

If you are interested in this property then it is important that you contact us at your earliest convenience. We will require certain pieces of personal information from you in order to provide a professional service to you and our client. The personal information you have provided to us may be shared with our client, the seller, but it will not be shared with any other third parties without your consent other than stated reasons detailed within our privacy policy. More information on how we hold and process your data is available on our website http://www.lovelleestateagency.co.uk/privacy-policy.php and you can opt out at any time by simply contacting us. Budgeting correctly and choosing the right mortgage for a move is vital. For independent mortgage and insurance advice call our mortgage advisor on 01507 603366 to arrange an appointment.

EPC

A copy of the full Energy Performance Certificate for this property is available upon request. Advisory Notes - Please be advised if you are considering purchasing a property for Buy To Let purposes, from 1st April 2018 without an EPC rated E or above it will not be possible to issue a new tenancy, or renew an existing tenancy agreement.

Agents Notes

These particulars are for guidance only. Lovelle Estate Agency, their clients and any joint agents give notice that:-
They have no authority to give or make representation/warranties regarding the property, or comment on the SERVICES, TENURE and RIGHT OF WAY of any property.

These particulars do not form part of any contract and must not be relied upon as statements or representation of fact.

All measurements/areas are approximate. The particulars including photographs and plans are for guidance only and are not necessarily comprehensive.


Mortgage calculator

Calculate Your Stamp Duty
£
Results
Stamp Duty To Pay:
Effective Rate:
Tax Band % Taxable Sum Tax

Calceby Way, Swaby, LN13

Struggling to find a property? Get in touch and we'll help you find your ideal property.

Interested in viewing this property?
Book a Viewing
Main menu